Интересные факты из истории Ленинградского метро
- Ignat
 - Сообщения: 431
 - Зарегистрирован: 28 окт 2010, 02:29
 - last_fm: Ta6ypeTKo
 - Станция метро: Большеохтинская
 - Контактная информация:
 
Интересные факты из истории Ленинградского метро
Давно думал создать такую тему. За несколько лет у меня скопилось огромное количество никогда ранее не публиковавшегося материала о истории проектов, строительства и эксплуатации Ленинградского-Петербургского метрополитена. Многое из этого, к сожалению, выложить в открытый доступ не представляется возможным, но, надеюсь, против публикации некоторых документов никто против не будет.
Начну, пожалуй, с одного из первоначальных нереализованных вариантов станции Технологический институт, принятого в техническом проекте первой очереди, когда только начинали выбирать типы станций. Фрагмент чертежа Метропроекта (январь 1947):
			
			
									
						
										
						Начну, пожалуй, с одного из первоначальных нереализованных вариантов станции Технологический институт, принятого в техническом проекте первой очереди, когда только начинали выбирать типы станций. Фрагмент чертежа Метропроекта (январь 1947):
- Ignat
 - Сообщения: 431
 - Зарегистрирован: 28 окт 2010, 02:29
 - last_fm: Ta6ypeTKo
 - Станция метро: Большеохтинская
 - Контактная информация:
 
Re: Интересные факты из истории Ленинградского метро
А вот исторический первый проезд красного в истории Ленинградского метро =)
			
			
									
						
										
						- в40
 - Профессионал

 - Сообщения: 14773
 - Зарегистрирован: 05 фев 2009, 19:46
 - Станция метро: Проспект Большевиков
 - Откуда: Дачное
 
Re: Интересные факты из истории Ленинградского метро
Да, весьма интересный факт: и недели не прошло с официального открытия метрополитена, а уже - проезд на красный свет.
			
			
									
						
							О=О=О=О=О=О=О=О=О=О=О=О=О=О=О=О=О=О=О
			
						- Tolya
 - Сообщения: 234
 - Зарегистрирован: 24 мар 2005, 16:06
 - Станция метро: Беговая
 - Откуда: Санкт-Петербург
 
Re: Интересные факты из истории Ленинградского метро
Спасибо огромное!
Колонно-пилонный четырехпутник - это круто.
			
			
									
						
							Колонно-пилонный четырехпутник - это круто.
Уважаемые пассажиры, не забывайте свои вещи в вагонах электропоезда. Поезд прибыл на конечную станцию "Академгородок"
			
						- Ignat
 - Сообщения: 431
 - Зарегистрирован: 28 окт 2010, 02:29
 - last_fm: Ta6ypeTKo
 - Станция метро: Большеохтинская
 - Контактная информация:
 
Re: Интересные факты из истории Ленинградского метро
в40 второй, кстати, не заставил себя долго ждать - всего через 4 дня =)
Видимо, в самом деле сказывалась неопытность.
Tolya
Это только начало! В ближайшее время выложу много ничуть не менее удивительных вещей =)
			
			
									
						
										
						Видимо, в самом деле сказывалась неопытность.
Tolya
Это только начало! В ближайшее время выложу много ничуть не менее удивительных вещей =)
- 
				Ибах
 - Сообщения: 174
 - Зарегистрирован: 23 мар 2016, 12:50
 - Станция метро: Елизаровская
 
Re: Интересные факты из истории Ленинградского метро
Интересно, почему отказались... из-за сложностей строительства 2 очереди? Прикольная станция получилась бы... По сути только стены между станциями -1 и -2 не было бы...
			
			
									
						
										
						- Ignat
 - Сообщения: 431
 - Зарегистрирован: 28 окт 2010, 02:29
 - last_fm: Ta6ypeTKo
 - Станция метро: Большеохтинская
 - Контактная информация:
 
Re: Интересные факты из истории Ленинградского метро
Продолжу тему =)
Вот вам несколько неосуществленных вариантов пересадочного узла на Сенной площади. Эту подземную развязку ЛМГТ начал проектировать в 1990 году, тогда ещё не определились ни с точным положением Спасской, ни с типом станции для неё, и рассматривали, в том числе, колонный вариант. Для удобства восприятия закрасил станции и переходы цветом (тёмно-оранжевым выход в город со Спасской, красным - пересадочные коридоры на Сенную и Садовую).
Ну а окончательным стал 11-й вариант с небольшими доработками впоследствии =)
			
			
									
						
										
						Вот вам несколько неосуществленных вариантов пересадочного узла на Сенной площади. Эту подземную развязку ЛМГТ начал проектировать в 1990 году, тогда ещё не определились ни с точным положением Спасской, ни с типом станции для неё, и рассматривали, в том числе, колонный вариант. Для удобства восприятия закрасил станции и переходы цветом (тёмно-оранжевым выход в город со Спасской, красным - пересадочные коридоры на Сенную и Садовую).
Ну а окончательным стал 11-й вариант с небольшими доработками впоследствии =)
- Ignat
 - Сообщения: 431
 - Зарегистрирован: 28 окт 2010, 02:29
 - last_fm: Ta6ypeTKo
 - Станция метро: Большеохтинская
 - Контактная информация:
 
Re: Интересные факты из истории Ленинградского метро
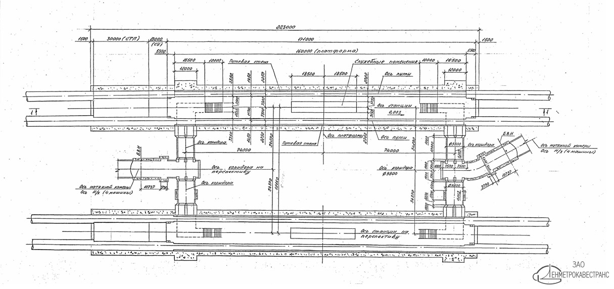
Тот самый легендарный проект ст. Обводный канал в виде двух односводов. Кросплатформенной пересадки, как я понял, тогда уже не планировалось. 
Далее фрагменты чертежей ЛМГТ 90-го года.
1. Общеувязочный чертеж станции по первому варианту с переходными коридорами ниже УГР:
2. Разрез по первому варианту:
Второй вариант предусматривал переходные коридоры над путями, для их примыкания в торцах станций устраивались специальные монолитные камеры.
3. Третий вариант:
4. Фрагмент чертежа схематичной трассировки перспективных линий Ф-I, П-I, К-К:
			
			
									
						
										
						Далее фрагменты чертежей ЛМГТ 90-го года.
1. Общеувязочный чертеж станции по первому варианту с переходными коридорами ниже УГР:
2. Разрез по первому варианту:
Второй вариант предусматривал переходные коридоры над путями, для их примыкания в торцах станций устраивались специальные монолитные камеры.
3. Третий вариант:
4. Фрагмент чертежа схематичной трассировки перспективных линий Ф-I, П-I, К-К:
- Михаил
 - Сообщения: 4333
 - Зарегистрирован: 17 май 2004, 10:20
 - Станция метро: Лиговский Проспект-2
 - Откуда: Питер
 
Re: Интересные факты из истории Ленинградского
Отлично! 3-ий вариант дает ответ на давнее предположение о расположении второго выхода ОК у сквера на углу Прилукской ул. и Лиговского пр.
			
			
									
						
										
						- Nomernoy
 - Профессионал

 - Сообщения: 5178
 - Зарегистрирован: 10 окт 2005, 16:25
 - Станция метро: Театральная
 - Откуда: Санкт-Петербург
 
Re: Интересные факты из истории Ленинградского метро
Михаил
Да, неспроста держали площадку. На мой взгляд, второй выход в том месте было бы разместить рациональнее, нежели по нынешнему варианту.
			
			
									
						
							Да, неспроста держали площадку. На мой взгляд, второй выход в том месте было бы разместить рациональнее, нежели по нынешнему варианту.

- Ignat
 - Сообщения: 431
 - Зарегистрирован: 28 окт 2010, 02:29
 - last_fm: Ta6ypeTKo
 - Станция метро: Большеохтинская
 - Контактная информация:
 
Re: Интересные факты из истории Ленинградского метро
Я думаю, многие задавались вопросом, возможно ли случайное закрытие перегонного гермозатвора во время движения поездов. Как оказалось, такой случай имел место быть в конце 1956 года. По счастью обошлось без серьёзных последствий. Для справки, затворы №1 и №2 находятся по обоим путям в нескольких метрах от конца платформы станции Автово перед началом четырёхпутного тоннеля.
			
			
									
						
										
						- Ignat
 - Сообщения: 431
 - Зарегистрирован: 28 окт 2010, 02:29
 - last_fm: Ta6ypeTKo
 - Станция метро: Большеохтинская
 - Контактная информация:
 
Re: Интересные факты из истории Ленинградского метро
Варианты трассы обхода размыва со строительством новых станций. ЛМГТ, 1996 год:
			
			
									
						
										
						- karhu
 - Сообщения: 3938
 - Зарегистрирован: 31 дек 2008, 19:14
 - Станция метро: Василеостровская
 - Откуда: Санкт-Петербург
 
Re: Интересные факты из истории Ленинградского метро
Это варианты с выходом на поверхность?
			
			
									
						
							"Ключик на 60 дайте, пожалуйста".
			
						- Horror
 - Сообщения: 970
 - Зарегистрирован: 26 апр 2009, 11:11
 - Станция метро: Осиновая Роща
 
Re: Интересные факты из истории Ленинградского метро
Забавно, что все три варианта обхода выглядят витиевато. Слышал только про вариант обхода (красным цветом). Но в 90-е гг. напоминало популизм. А в случае "синего" варианта что намеревались делать с "Площадью Мужества"?
Интересно, а вариант восстановления/ремонта утраченных тоннелей рассматривался?
			
			
									
						
							Интересно, а вариант восстановления/ремонта утраченных тоннелей рассматривался?
Лучший способ избавиться от своего недостатка - это преподнести его всем в виде достоинства.
			
						- в40
 - Профессионал

 - Сообщения: 14773
 - Зарегистрирован: 05 фев 2009, 19:46
 - Станция метро: Проспект Большевиков
 - Откуда: Дачное
 
Re: Интересные факты из истории Ленинградского метро
А я слышал ещё об одном предлагавшемся варианте обхода размыва, в котором новые перегоны-петли от "Лесной" стыковались с существующими камерами съездов за "Политехнической". В этом варианте станция "Площадь Мужества" исключалась из эксплуатации, а на "Политехнической" требовалась смена направления движения.
Видимо, по этой причине такой вариант сразу отвергли.
			
			
									
						
							Видимо, по этой причине такой вариант сразу отвергли.
О=О=О=О=О=О=О=О=О=О=О=О=О=О=О=О=О=О=О