Ладожская
- Kaamoos
- Сообщения: 9826
- Зарегистрирован: 04 июн 2012, 19:33
- Станция метро: Крестовский Остров
- Откуда: Ленинград
Re: Ладожская
Метрополитен Петербурга не смог найти подрядчика для ремонта станции «Ладожская»
В конкурсе участвовал только один претендент.
Метрополитен Санкт-Петербурга не смог найти подрядчика для ремонта станции "Ладожская". Специалистов искали с помощью конкурса на госзакупках. Был объявлен аукцион, однако претендент объявился лишь один, который, по какой-то причине, не устроил заказчика. Информация об этом появилась на портале госзакупок 5 декабря 2022 года.
- Закупка признана несостоявшейся. Конкурентная закупка признана несостоявшейся в связи с тем, что по результатам ее проведения все заявки на участие в закупке отклонены, - говорится на портале.
Стоимость работ по капитальному ремонту вестибюля, а также эскалаторов станции "Ладожская" оценивалась в 2,3 миллиарда рублей. Конкурс был объявлен еще в середине ноября, однако появился лишь один претендент, предложение которого было признано не соответствующим требованиям. Комиссия отметил, что компания в своем предложении просто повторила цифры из технического задания.
https://www.spb.kp.ru/online/news/5042623/
В конкурсе участвовал только один претендент.
Метрополитен Санкт-Петербурга не смог найти подрядчика для ремонта станции "Ладожская". Специалистов искали с помощью конкурса на госзакупках. Был объявлен аукцион, однако претендент объявился лишь один, который, по какой-то причине, не устроил заказчика. Информация об этом появилась на портале госзакупок 5 декабря 2022 года.
- Закупка признана несостоявшейся. Конкурентная закупка признана несостоявшейся в связи с тем, что по результатам ее проведения все заявки на участие в закупке отклонены, - говорится на портале.
Стоимость работ по капитальному ремонту вестибюля, а также эскалаторов станции "Ладожская" оценивалась в 2,3 миллиарда рублей. Конкурс был объявлен еще в середине ноября, однако появился лишь один претендент, предложение которого было признано не соответствующим требованиям. Комиссия отметил, что компания в своем предложении просто повторила цифры из технического задания.
https://www.spb.kp.ru/online/news/5042623/
It's good to see you again!
- Maxx Shab
- Сообщения: 598
- Зарегистрирован: 03 мар 2018, 08:05
- Станция метро: Удельная
- Откуда: Хабаровск
- telegram: https://t.me/mxxshb
Re: Ладожская
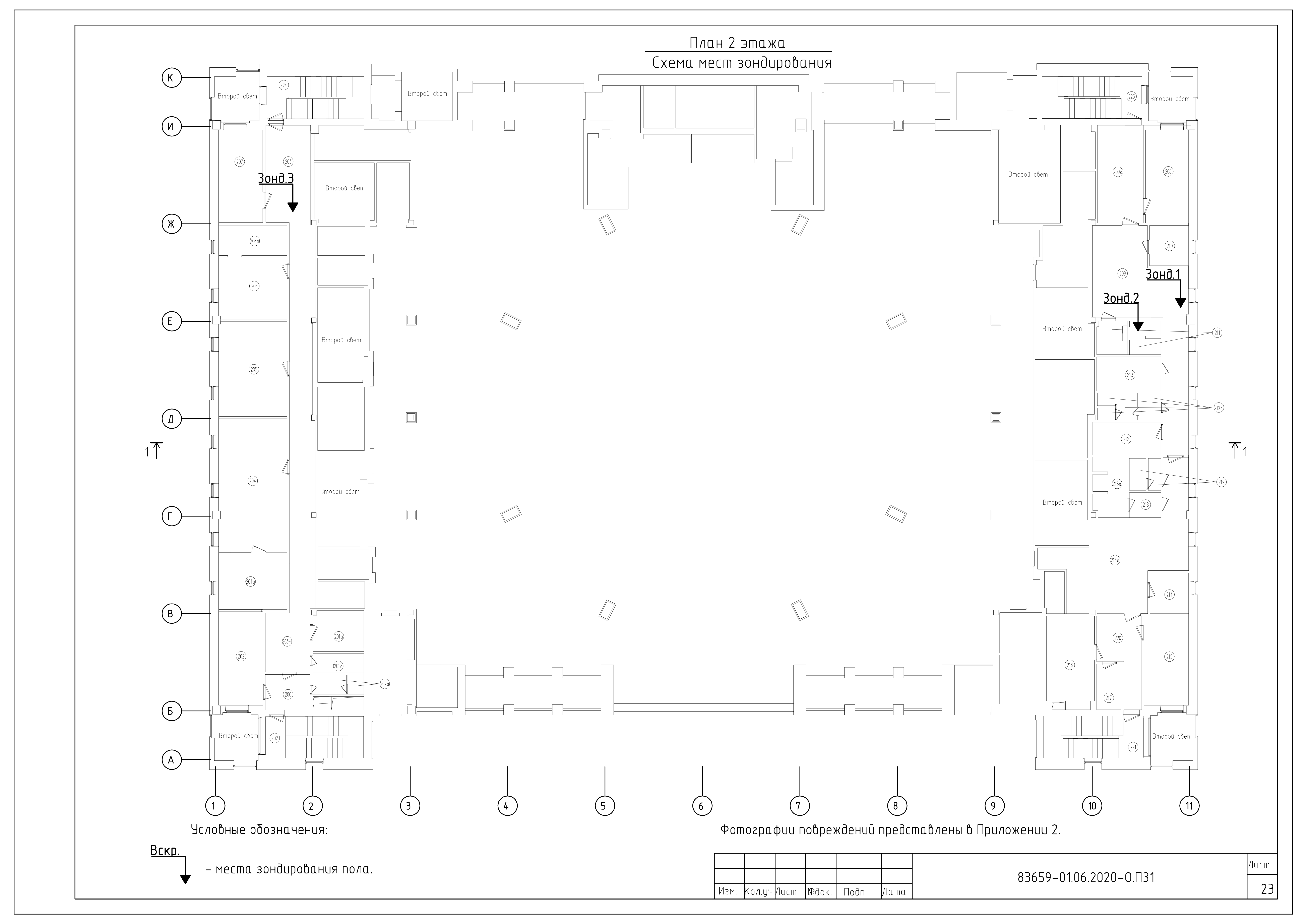
Изучил вчера документацию по капитальному ремонту вестибюля «Ладожской» и подметил весьма специфическую форму его подвала, а также обилие второго света у маленьких помещений по периметру здания (с технологическими проёмами в перекрытиях первого этажа). Надо полагать, это всё непосредственным образом вызвано увязкой с советским проектом вокзала, в котором также предусматривалось поднять перекрытие со световым фонарём на этаж выше
Поэтажные планы
Фотофиксация
Бонус
В одном из помещений висит любопытный раритет — карта города 1992-1993 годов
- magnum
- Сообщения: 501
- Зарегистрирован: 08 дек 2006, 20:27
- Станция метро: Индустриальный Проспект
- Откуда: Санкт-Петербург
Re: Ладожская
Решение было успешно обжаловано через ФАС, вынесено предписание об устранении нарушений, выбор подрядчика продолжается
Источник: https://vk.com/wall-49073563_164931Для исполнения предписания ФАС России по результатам рассмотрения жалобы ООО "Ленспецавтоматика" отменены итоги электронного аукциона на выполнение работ по капитальному ремонту вестибюля и наклонного хода ст. "Ладожская", внесены изменения в документацию, приём заявок продлён до 16 января 2023 года, победитель станет известен 24 января 2023 года. Начальная (максимальная) цена договора уменьшена с 2,353 млрд руб. до 2,276 млрд руб. (https://vk.cc/ckh4HN)
Напомним, что изначально на участие в этом аукционе была подана только 1 заявка, которая была отклонена комиссией заказчика за несоответствие требованиям к заполнению формы эквивалентности товаров. Именно это решение и было обжаловано через ФАС, которая признала действия метрополитена неправомерными и вынесла предписание об устранении допущенных нарушений.
В размещённой сегодня документации закупки указаны новые сроки закрытия "Ладожской": с 31 марта 2023 года по 29 февраля 2024 года.
Кроме того, объявлен аукцион (60,9 млн руб.) на выполнение работ по капитальному ремонту эскалаторов №№ 1, 2, 3, 4 станции "Ладожская" в части замены облицовочных щитов балюстрады, включая листы примыкания к зонтам наклона (https://vk.cc/ckhgTc). Итоги этой закупки планируется подвести 26 января 2023 года.
-
Icefer
- Сообщения: 1379
- Зарегистрирован: 10 июл 2019, 22:38
- Станция метро: Морской Фасад
Re: Ладожская
Ну что, таки закрывают в марте, или снова сроки поедут?
- Дозатор 95
- Сообщения: 654
- Зарегистрирован: 30 июн 2006, 14:03
-
Icefer
- Сообщения: 1379
- Зарегистрирован: 10 июл 2019, 22:38
- Станция метро: Морской Фасад
Re: Ладожская
А как они собрались закончить за 12 мес, если например Чернышевскую 17 мес по плану (а напомню что техноложка из 15 плана стала 26 кажется факта)?
Ну и что они там выкатили, по сути весь вокзал висит на трамваях до Новочеркасской? Они вообще понимают что там для трамваев тогда нужен будет интервал максимум 90 секунд?
Ну и что они там выкатили, по сути весь вокзал висит на трамваях до Новочеркасской? Они вообще понимают что там для трамваев тогда нужен будет интервал максимум 90 секунд?
- в40
- Профессионал

- Сообщения: 14816
- Зарегистрирован: 05 фев 2009, 19:46
- Станция метро: Проспект Большевиков
- Откуда: Дачное
Re: Ладожская
На "Ладожской" замены эскалаторов не будет, а на "Чернышевской" - полная реконструкция наклонного хода, натяжной камеры и машинного зала в связи с заменой ТРЁХ эскалаторов на ЧЕТЫРЕ, т.е. сначала все старые внутренние конструкции будут разломаны, а потом отстроены заново, но уже под четыре машины.
ЗЫ: вспомнил, как весной 1985 года я видел временные кольца строящегося наклона "Ладожской". Как время бежит...
О=О=О=О=О=О=О=О=О=О=О=О=О=О=О=О=О=О=О
- magnum
- Сообщения: 501
- Зарегистрирован: 08 дек 2006, 20:27
- Станция метро: Индустриальный Проспект
- Откуда: Санкт-Петербург
Re: Ладожская
Аукцион на ремонт "Ладожской" снова тормозят жалобой в ФАС: https://www.fontanka.ru/2023/01/22/71996063/
- Metroschemes
- Сообщения: 6499
- Зарегистрирован: 22 окт 2005, 04:19
- last_fm: Metroschemes
- Станция метро: Парнас
- Откуда: Питер
- Контактная информация:
Re: Ладожская
А троллейбусные и автобусные маршруты там уже отменили что ли?
Всего за месяц ЗЕНИТ взял три трофея и одну станцию метро!
Заходите на мой сайт: Схема метро - История метрополитенов в схемах!
Заходите на мой сайт: Схема метро - История метрополитенов в схемах!
- GelezinisVilkas
- Сообщения: 3679
- Зарегистрирован: 15 май 2015, 12:19
- Станция метро: Дунайская
Re: Ладожская
Так они из-за любителей возить свою драгоценную жoпу в одиночку стоят в пробках.Metroschemes писал(а): ↑24 янв 2023, 16:08 А троллейбусные и автобусные маршруты там уже отменили что ли?
- Metroschemes
- Сообщения: 6499
- Зарегистрирован: 22 окт 2005, 04:19
- last_fm: Metroschemes
- Станция метро: Парнас
- Откуда: Питер
- Контактная информация:
Re: Ладожская
Если у трамваев будет интервал 90 секунд, они будут стоять в таких же пробках. Да и нет там особых пробок между Лажожской и Новочеркасской: автобус даже через пробку доедет быстрее, чем трамвай добавится кругами.
Всего за месяц ЗЕНИТ взял три трофея и одну станцию метро!
Заходите на мой сайт: Схема метро - История метрополитенов в схемах!
Заходите на мой сайт: Схема метро - История метрополитенов в схемах!
-
Randy
- Сообщения: 3170
- Зарегистрирован: 25 янв 2005, 13:31
Re: Ладожская
Автобусу сначала надо до Ладожской добраться через шикану дель дьябло. В комплексе, если оборот на Заневской правильно организовать, трамвай всё равно будет надёжнее и быстрее.
- Metroschemes
- Сообщения: 6499
- Зарегистрирован: 22 окт 2005, 04:19
- last_fm: Metroschemes
- Станция метро: Парнас
- Откуда: Питер
- Контактная информация:
Re: Ладожская
Шикану давно пора ликвидировать, будет легче жить всем. Ну а пустить автобус можно прямо от Ладожской в сторону Новочеркасской. Трамвай временный как раз ведь по такому маршруту будет организован?
Всего за месяц ЗЕНИТ взял три трофея и одну станцию метро!
Заходите на мой сайт: Схема метро - История метрополитенов в схемах!
Заходите на мой сайт: Схема метро - История метрополитенов в схемах!
-
Randy
- Сообщения: 3170
- Зарегистрирован: 25 янв 2005, 13:31
Re: Ладожская
Проблема не в том, чтобы пустить автобус от Ладожской, а в том, чтобы на автобусе доехать до Ладожской.
- Дозатор 95
- Сообщения: 654
- Зарегистрирован: 30 июн 2006, 14:03
Re: Ладожская
Жалобу отклонили, договор собираются подписать.magnum писал(а): ↑23 янв 2023, 09:41 Аукцион на ремонт "Ладожской" снова тормозят жалобой в ФАС: https://www.fontanka.ru/2023/01/22/71996063/