Фрунзенский радиус. Вторая очередь. Общая тема
Модератор: Nomernoy
- 71-153
- Сообщения: 303
- Зарегистрирован: 20 май 2007, 17:29
- Станция метро: Бухарестская
- Откуда: Санкт-Петербург
Re: Фрунзенский радиус. Вторая очередь. Общая тема
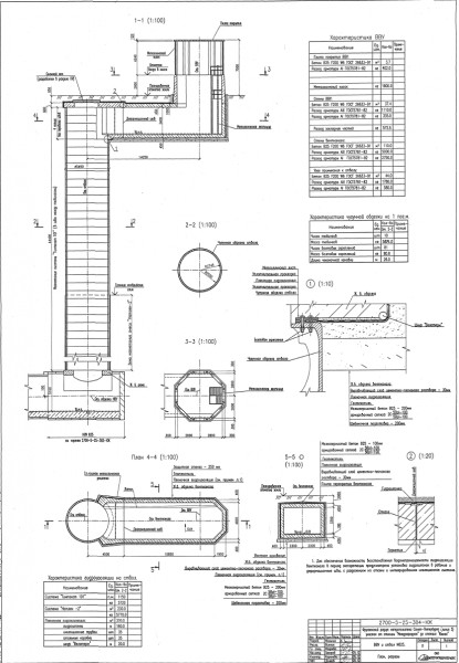
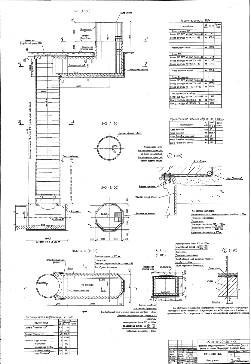
Фото для пояснения по двухпутному тоннелю:
Кстати, на перегоне Славы - Дунайский закончилось сооружение основных конструкций Демонтажной камеры
Кстати, на перегоне Славы - Дунайский закончилось сооружение основных конструкций Демонтажной камеры
- в40
- Профессионал

- Сообщения: 14801
- Зарегистрирован: 05 фев 2009, 19:46
- Станция метро: Проспект Большевиков
- Откуда: Дачное
Re: Фрунзенский радиус. Вторая очередь. Общая тема
Жесткое основание залито гораздо выше того уровня, по которому перемещаются ролики транспортного моста.
О=О=О=О=О=О=О=О=О=О=О=О=О=О=О=О=О=О=О
- mx
- Профессионал

- Сообщения: 4135
- Зарегистрирован: 14 сен 2005, 21:32
- Станция метро: -------
- Откуда: 59`50N 30`25E
Re: Фрунзенский радиус. Вторая очередь. Общая тема
Ну тем интереснее будет посмотреть на процесс разборки 

Всё потому, что кто-то слишком много ест!
- в40
- Профессионал

- Сообщения: 14801
- Зарегистрирован: 05 фев 2009, 19:46
- Станция метро: Проспект Большевиков
- Откуда: Дачное
Re: Фрунзенский радиус. Вторая очередь. Общая тема
71-153 писал(а):Кстати, на перегоне Славы - Дунайский закончилось сооружение основных конструкций Демонтажной камеры
Жаль, что такая огромная, просто титаническая работа, на которую у СМУ-17 ушло почти два года, была нужна лишь для демонтажа ТПМК. Весьма спорная экономия строительства в сравнении с сооружением двух однопутных тоннелей. В первую очередь, по срокам.
ЗЫ: СМУ-10 на "Приморской" в перспективе предстоит построить точно такую же камеру.
О=О=О=О=О=О=О=О=О=О=О=О=О=О=О=О=О=О=О
- Михаил
- Сообщения: 4333
- Зарегистрирован: 17 май 2004, 10:20
- Станция метро: Лиговский Проспект-2
- Откуда: Питер
Re: Фрунзенский радиус. Вторая очередь. Общая тема
71-153 писал(а):Фото для пояснения по двухпутному тоннелю:
Красота!
1. Может быть логично было бы часть лотка заполнить грунтом или же раствором пульпы с цементом?
2. Будут ли пути построены с применением шумоизоляционных материалов?
P.S. Хочется еще фоток!!!!
- karhu
- Сообщения: 3938
- Зарегистрирован: 31 дек 2008, 19:14
- Станция метро: Василеостровская
- Откуда: Санкт-Петербург
Re: Фрунзенский радиус. Вторая очередь. Общая тема
в40 писал(а):71-153 писал(а):Кстати, на перегоне Славы - Дунайский закончилось сооружение основных конструкций Демонтажной камеры
Жаль, что такая огромная, просто титаническая работа, на которую у СМУ-17 ушло почти два года, была нужна лишь для демонтажа ТПМК. Весьма спорная экономия строительства в сравнении с сооружением двух однопутных тоннелей. В первую очередь, по срокам.
ЗЫ: СМУ-10 на "Приморской" в перспективе предстоит построить точно такую же камеру.
В этой камере уже разбирались же целых два Ясиноватских щита.
А вот на 467 придётся строить целых две монтажные камеры.
"Ключик на 60 дайте, пожалуйста".
- mx
- Профессионал

- Сообщения: 4135
- Зарегистрирован: 14 сен 2005, 21:32
- Станция метро: -------
- Откуда: 59`50N 30`25E
Re: Фрунзенский радиус. Вторая очередь. Общая тема
в40 писал(а):Жаль, что такая огромная, просто титаническая работа, на которую у СМУ-17 ушло почти два года, была нужна лишь для демонтажа ТПМК. Весьма спорная экономия строительства в сравнении с сооружением двух однопутных тоннелей. В первую очередь, по срокам.
Но вид офигенный. И почти всегда действует старое правило: дороже и сложнее строительство - дешевле и проще эксплуатация. И соответственно наоборот. А строительство - краткий миг по сравнению с десятилетиями работы.
Всё потому, что кто-то слишком много ест!
- karhu
- Сообщения: 3938
- Зарегистрирован: 31 дек 2008, 19:14
- Станция метро: Василеостровская
- Откуда: Санкт-Петербург
Re: Фрунзенский радиус. Вторая очередь. Общая тема
Подкинте, пожалуйста, добрые люди, ссылку на конкурс на строительство от Международной до Южной.
"Ключик на 60 дайте, пожалуйста".
-
Мировойкризис
- Сообщения: 83
- Зарегистрирован: 09 фев 2009, 23:30
- Станция метро: Кантемировская
Re: Фрунзенский радиус. Вторая очередь. Общая тема
А какой маркой бетона залит лоток? Я так понимаю, для заполнения можно использовать тощий бетон, только сверху сделать более прочный слой.
- mx
- Профессионал

- Сообщения: 4135
- Зарегистрирован: 14 сен 2005, 21:32
- Станция метро: -------
- Откуда: 59`50N 30`25E
Re: Фрунзенский радиус. Вторая очередь. Общая тема
karhu писал(а):Подкинте, пожалуйста, добрые люди, ссылку на конкурс на строительство от Международной до Южной.
Держи мил человек

Всё потому, что кто-то слишком много ест!
- в40
- Профессионал

- Сообщения: 14801
- Зарегистрирован: 05 фев 2009, 19:46
- Станция метро: Проспект Большевиков
- Откуда: Дачное
Re: Фрунзенский радиус. Вторая очередь. Общая тема
Мировойкризис писал(а):А какой маркой бетона залит лоток? Я так понимаю, для заполнения можно использовать тощий бетон, только сверху сделать более прочный слой.
Если не ошибаюсь, бетононасосы на большие расстояния способны перекачивать бетон классом не ниже В15.
karhu писал(а):В этой камере уже разбирались же целых два Ясиноватских щита.
А если бы проходка выполнялась щитами, способными вести работу в обводнённых грунтах, то эта камера вообще не потребовалась бы: щиты можно было бы разобрать либо в котловане "Дунайской", либо вообще в районе рампы "Шушар" (в случае строительства двух однопутных тоннелей до выхода на поверхность). За два года, пока сооружали эту камеру, щиты уже давно и два однопутных тоннеля прошли бы, и необходимые притоннельные выработки были бы построены.
karhu писал(а):А вот на 467 придётся строить целых две монтажные камеры.
Это не монтажные камеры. Это камеры затворов. В одной будет собран щит. А в другой - нет.
Кроме того, по окончанию проходки перегонного тоннеля над щитом потребуется построить демонтажную камеру. Точнее, - разгружающий свод. Затем после демонтажа щита под этим сводом будет собран тюбингоукладчик и остаток тоннеля (20-30 метров) будет построено вручную.
Михаил писал(а):Будут ли пути построены с применением шумоизоляционных материалов?
Время покажет. В техзадании на проектирование это требование указывалось.
О=О=О=О=О=О=О=О=О=О=О=О=О=О=О=О=О=О=О
-
Manhattan
- Сообщения: 1721
- Зарегистрирован: 20 сен 2012, 21:39
- Станция метро: Приморская
Re: Фрунзенский радиус. Вторая очередь. Общая тема
в40 писал(а):А если бы проходка выполнялась щитами, способными вести работу в обводнённых грунтах, то эта камера вообще не потребовалась бы: щиты можно было бы разобрать либо в котловане "Дунайской", либо вообще в районе рампы "Шушар" (в случае строительства двух однопутных тоннелей до выхода на поверхность). За два года, пока сооружали эту камеру, щиты уже давно и два однопутных тоннеля прошли бы, и необходимые притоннельные выработки были бы построены.
Интересно, если бы хотя-бы один такой щит взяли у Москвы в аренду, наверное ведь уже давно прошли бы до Дунайской оба тоннеля? И наверное дешевле бы вышло чем строить огромную демонтажную камеру под землей.
- karhu
- Сообщения: 3938
- Зарегистрирован: 31 дек 2008, 19:14
- Станция метро: Василеостровская
- Откуда: Санкт-Петербург
- Metroschemes
- Сообщения: 6497
- Зарегистрирован: 22 окт 2005, 04:19
- last_fm: Metroschemes
- Станция метро: Парнас
- Откуда: Питер
- Контактная информация:
Re: Фрунзенский радиус. Вторая очередь. Общая тема
Пара фоток с поверхности над примерным местоположением щита.
Кстати, ощущаются небольшие вибрации земли в этом месте (не от трамвая)!
Жалко, что наш Метрострой не ставит такие таблички, как были в Киеве (на 3 фотке).
Кстати, ощущаются небольшие вибрации земли в этом месте (не от трамвая)!
Жалко, что наш Метрострой не ставит такие таблички, как были в Киеве (на 3 фотке).
Всего за месяц ЗЕНИТ взял три трофея и одну станцию метро!
Заходите на мой сайт: Схема метро - История метрополитенов в схемах!
Заходите на мой сайт: Схема метро - История метрополитенов в схемах!
- в40
- Профессионал

- Сообщения: 14801
- Зарегистрирован: 05 фев 2009, 19:46
- Станция метро: Проспект Большевиков
- Откуда: Дачное
Re: Фрунзенский радиус. Вторая очередь. Общая тема
Manhattan писал(а):Интересно, если бы хотя-бы один такой щит взяли у Москвы в аренду, наверное ведь уже давно прошли бы до Дунайской оба тоннеля? И наверное дешевле бы вышло чем строить огромную демонтажную камеру под землей.
Конечно, прошли бы. Но в Москве, насколько мне известно, все щиты нарасхват. Их постоянно перебрасывают с одного объекта на другой.
О=О=О=О=О=О=О=О=О=О=О=О=О=О=О=О=О=О=О