Удельную и Ладожскую проще, там 4 эскалатора.
Горный институт (проектное название "Большой проспект")
Модератор: Nomernoy
-
- Сообщения: 88
- Зарегистрирован: 17 июл 2019, 11:12
- Станция метро: Бестужевская
- W0LF
- Сообщения: 751
- Зарегистрирован: 09 ноя 2019, 21:50
- Станция метро: Рыбацкое
Re: Горный институт (проектное название "Большой проспект")
Зенит уже давно не закрывали. Так что возможностей - масса!
-
- Сообщения: 249
- Зарегистрирован: 18 янв 2013, 22:01
- Станция метро: Звёздная
Re: Горный институт (проектное название "Большой проспект")
Московскую через две недели откроют! Один из выходов в город, пол-станции есть!))
-
- Сообщения: 122
- Зарегистрирован: 01 май 2011, 11:36
- Станция метро: Шушары
Re: Горный институт (проектное название "Большой проспект")
А её и не закрывал никто.
- Metroschemes
- Сообщения: 6496
- Зарегистрирован: 22 окт 2005, 04:19
- last_fm: Metroschemes
- Станция метро: Парнас
- Откуда: Питер
- Контактная информация:
Re: Горный институт (проектное название "Большой проспект")
Зенит сейчас можно и закрыть месяца на три, всё равно матчей сейчас нет
Всего за месяц ЗЕНИТ взял три трофея и одну станцию метро!
Заходите на мой сайт: Схема метро - История метрополитенов в схемах!
Заходите на мой сайт: Схема метро - История метрополитенов в схемах!
-
- Сообщения: 2586
- Зарегистрирован: 26 ноя 2011, 19:20
- Станция метро: Шкиперская
Re: Горный институт (проектное название "Большой проспект")
Почти страница офф-топа набегает.
- TheSeaWind
- Сообщения: 336
- Зарегистрирован: 28 июн 2022, 14:52
- Станция метро: Балтийская Жемчужина
- Откуда: Улица Маршала Захарова
Re: Горный институт (проектное название "Большой проспект")
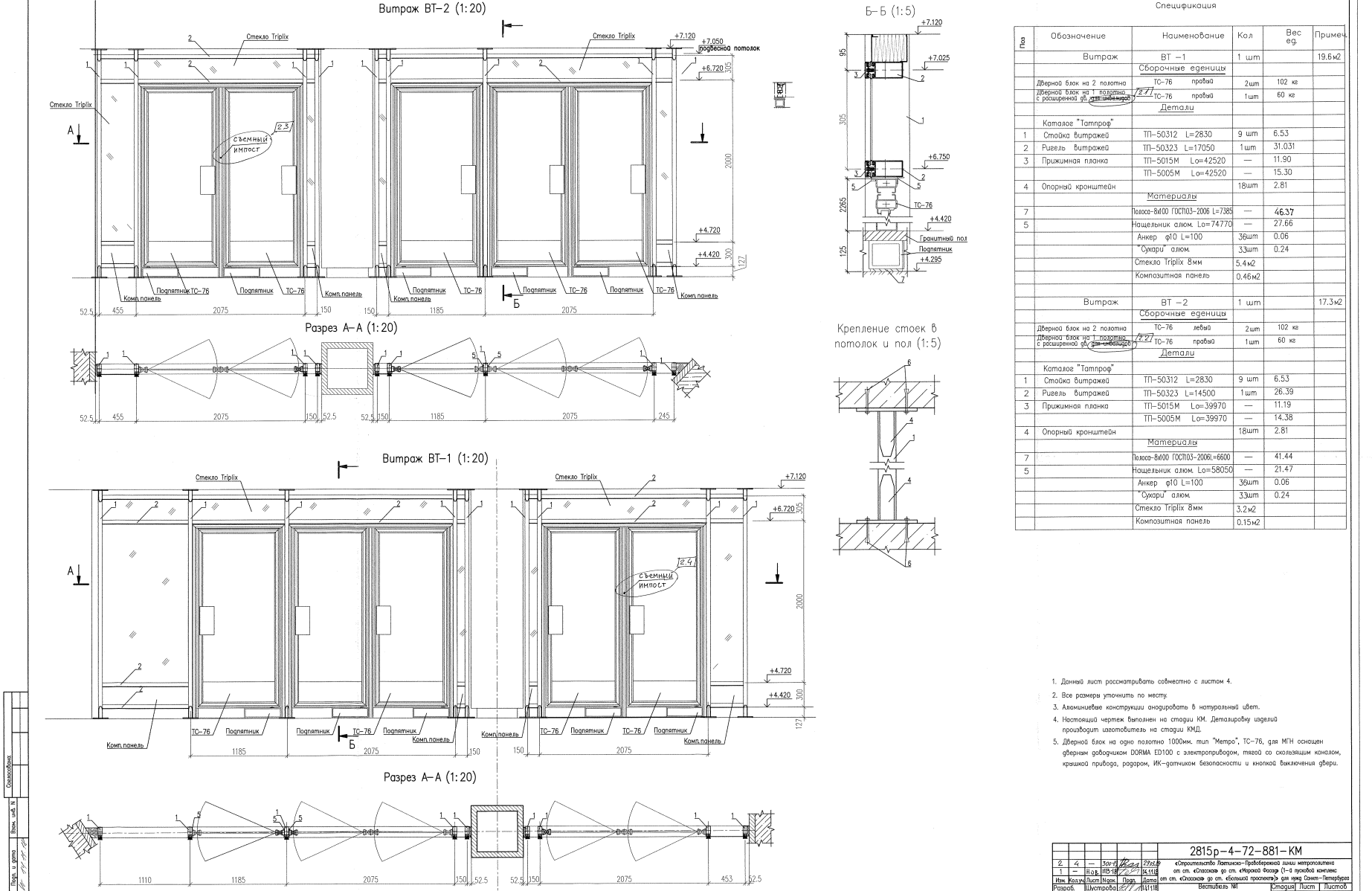
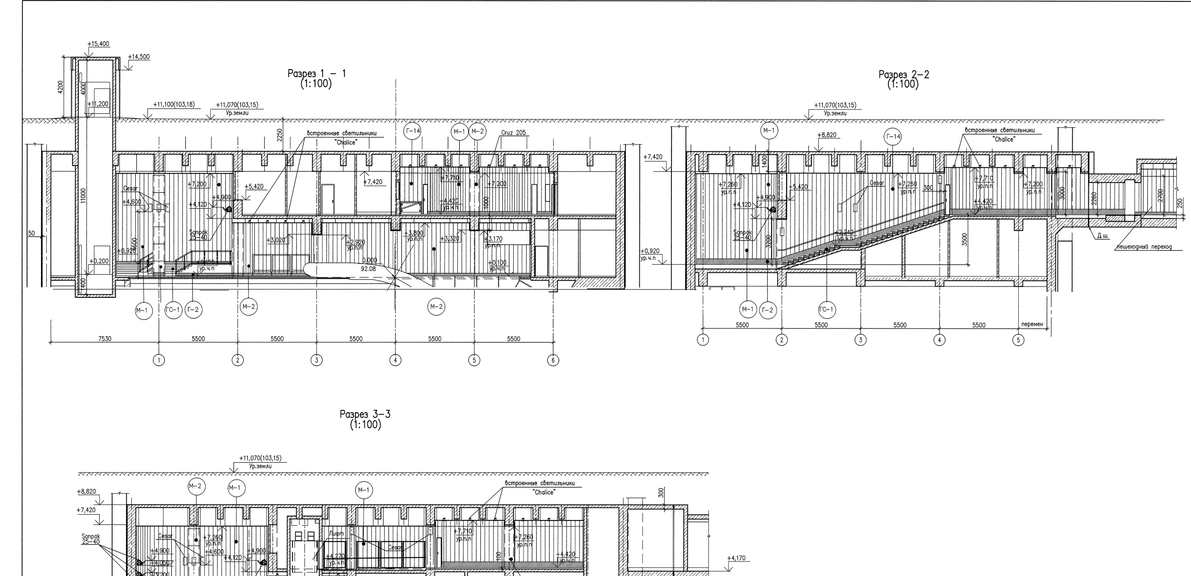
Несколько чертежей вестибюля и наклонного хода
Федеральное финансирование Петербургскому метрополитену!
- GelezinisVilkas
- Сообщения: 3521
- Зарегистрирован: 15 май 2015, 12:19
- Станция метро: Дунайская
Re: Горный институт (проектное название "Большой проспект")
Опять половая ориентация помешала сделать нормальный вестибюль?
Сложно было сделать наземный павильон с турникетами и кассами и промежуточный зал на месте где сейчас будут турникеты?
Участок позволяет сделать павильон как на Ломоносовской например, а то и больше.
Сложно было сделать наземный павильон с турникетами и кассами и промежуточный зал на месте где сейчас будут турникеты?
Участок позволяет сделать павильон как на Ломоносовской например, а то и больше.

- в40
- Профессионал
- Сообщения: 14768
- Зарегистрирован: 05 фев 2009, 19:46
- Станция метро: Проспект Большевиков
- Откуда: Дачное
Re: Горный институт (проектное название "Большой проспект")
А почему Вы считаете, что нормальным вестибюлем должен быть только наземный вестибюль? В Милане полно подземных вестибюлей и никто не парится. Или Ваше мнение - это истина в последней инстанции?
О=О=О=О=О=О=О=О=О=О=О=О=О=О=О=О=О=О=О
- GelezinisVilkas
- Сообщения: 3521
- Зарегистрирован: 15 май 2015, 12:19
- Станция метро: Дунайская
Re: Горный институт (проектное название "Большой проспект")
Потому что только наземный вестибюль позволяет минимизировать расстояние от дверей станции, до дверей поезда.
Тут же двери станции и вход на эскалатор почти друг над другом, но между ними 100 метров коридоров, ступеней и поворотов.
Сука, не станция, а угольная шахта какая-то, под стать названию. Хорошо, что не додумались коридоры в виде выработки сделать, а вместо эскалатора рудоспуск.
Да истина, потому что я вижу сразу то, что остальные видят только после того как - «Эксплуатация покажет»
Наземный вестибюль был бы в разы дешевле в строительстве, не пришлось бы пихать под землю все помещения. Достаточно было сделать под поверхностью небольшой переходной зал с каморкой для швабр. Остальные помещения спокойно бы разместились бы в вестибюле.
А например трамвайная и автобусно-троллейбусная остановки могли бы располагаться в плотную у вестибюля. А это значит можно было организовать кратчайшую пересадку по типу «сухие ноги», да ещё и короче чем на Ладожской. От дверей транспорта до дверей вестибюля можно было сделать расстояние в 3-4 метра, а до эскалаторов 15-20 метров, без ступеней и лестниц.
А так люди будут наворачивать круги, скакать по ступеням, блуждать в коридорах.
Можно было сделать дешевле и удобнее, но сделают дороже и что бы вы гниды ( челядь) страдали каждый день, и желательно по два раза.
Коррупция + недружелюбная среда + непробиваемая тупость - символы времени.
Тут же двери станции и вход на эскалатор почти друг над другом, но между ними 100 метров коридоров, ступеней и поворотов.
Сука, не станция, а угольная шахта какая-то, под стать названию. Хорошо, что не додумались коридоры в виде выработки сделать, а вместо эскалатора рудоспуск.
Да истина, потому что я вижу сразу то, что остальные видят только после того как - «Эксплуатация покажет»
Наземный вестибюль был бы в разы дешевле в строительстве, не пришлось бы пихать под землю все помещения. Достаточно было сделать под поверхностью небольшой переходной зал с каморкой для швабр. Остальные помещения спокойно бы разместились бы в вестибюле.
А например трамвайная и автобусно-троллейбусная остановки могли бы располагаться в плотную у вестибюля. А это значит можно было организовать кратчайшую пересадку по типу «сухие ноги», да ещё и короче чем на Ладожской. От дверей транспорта до дверей вестибюля можно было сделать расстояние в 3-4 метра, а до эскалаторов 15-20 метров, без ступеней и лестниц.
А так люди будут наворачивать круги, скакать по ступеням, блуждать в коридорах.
Можно было сделать дешевле и удобнее, но сделают дороже и что бы вы гниды ( челядь) страдали каждый день, и желательно по два раза.
Коррупция + недружелюбная среда + непробиваемая тупость - символы времени.

- GelezinisVilkas
- Сообщения: 3521
- Зарегистрирован: 15 май 2015, 12:19
- Станция метро: Дунайская
Re: Горный институт (проектное название "Большой проспект")
А да и забыл, течь это будет так же как Дунайская и Беговая.
Ну а при наводнении, ну я не знаю как они будут бороться с водой в этих километровых коридорах. Опять вёдра, тряпки и бутылки подставлять.
Хорошо фамилии есть на чертежах, что бы знать, кто эти херои.
Виноградова и Ромашкин.
Ну а при наводнении, ну я не знаю как они будут бороться с водой в этих километровых коридорах. Опять вёдра, тряпки и бутылки подставлять.
Хорошо фамилии есть на чертежах, что бы знать, кто эти херои.
Виноградова и Ромашкин.

- в40
- Профессионал
- Сообщения: 14768
- Зарегистрирован: 05 фев 2009, 19:46
- Станция метро: Проспект Большевиков
- Откуда: Дачное
Re: Горный институт (проектное название "Большой проспект")
Ромашкин - архитектор (с Николаем Викторовичем знаком лично). А тип несущих и ограждающих конструкций, как и вид гидроизоляции, выбирают конструкторы-технологи. Плюс качество работ также влияет на качество гидроизоляции.
Далеко не всегда наклонный ход можно примкнуть непосредственно к платформе станции, обеспечив беспрепятственное перемещение пассажиров сразу из вестибюля на платформу. Вспомните хотя бы "Владимирскую" или "Лиговский проспект". И наземные вестибюли, в силу разных причин, возможно построить не всегда ("Невский проспект", "Новочеркасская", "Садовая").
Почему у "Горного института" был выбран именно подземный вариант вестибюля - я не знаю (возможно, чтобы сохранить городскую площадь и не сужать пространство).
Далеко не всегда наклонный ход можно примкнуть непосредственно к платформе станции, обеспечив беспрепятственное перемещение пассажиров сразу из вестибюля на платформу. Вспомните хотя бы "Владимирскую" или "Лиговский проспект". И наземные вестибюли, в силу разных причин, возможно построить не всегда ("Невский проспект", "Новочеркасская", "Садовая").
Почему у "Горного института" был выбран именно подземный вариант вестибюля - я не знаю (возможно, чтобы сохранить городскую площадь и не сужать пространство).
О=О=О=О=О=О=О=О=О=О=О=О=О=О=О=О=О=О=О
- koropet
- Сообщения: 186
- Зарегистрирован: 01 май 2012, 18:40
- Станция метро: Электросила
- Откуда: Санкт-Петербург
Re: Горный институт (проектное название "Большой проспект")
Путем нехитрых вычислений на основе представленных чертежей получаем глубину заложения 70,9м. От платформы до уровня поверхности 69,8м, это мог быть самый длинный эскалатор, длиннее, чем на Адмиралтейской. Что как минимум ведет к повышенной стоимости машин и эксплуатационным расходам. Это так, к слову, не могу сказать точно, что именно из-за этого приняли подземный вариант.
Конечно как для пассажира, хорошо бы попадать с платформы на поверхность или пересадку на транспорт "механизированным" способом. Поэтому всегда удручали высокие лестницы как в подземных вестибюлях так и на пересадках. Здесь конечно придется подниматься на +4,4м только по лестницам. Остальное на малом эскалаторе можно проехать.
Любителям кидаться грязью - позвоните через секретаря Ромашкину-Тиманову (именно так, у него двойная фамилия), вежливо задайте вопрос. Много чего интересного расскажет, если время будет. Расскажите свои идеи, обоснуйте, может узнаете почему не так сделано, как вы считаете лучше.
Конечно как для пассажира, хорошо бы попадать с платформы на поверхность или пересадку на транспорт "механизированным" способом. Поэтому всегда удручали высокие лестницы как в подземных вестибюлях так и на пересадках. Здесь конечно придется подниматься на +4,4м только по лестницам. Остальное на малом эскалаторе можно проехать.
Любителям кидаться грязью - позвоните через секретаря Ромашкину-Тиманову (именно так, у него двойная фамилия), вежливо задайте вопрос. Много чего интересного расскажет, если время будет. Расскажите свои идеи, обоснуйте, может узнаете почему не так сделано, как вы считаете лучше.
- Metroschemes
- Сообщения: 6496
- Зарегистрирован: 22 окт 2005, 04:19
- last_fm: Metroschemes
- Станция метро: Парнас
- Откуда: Питер
- Контактная информация:
Re: Горный институт (проектное название "Большой проспект")
Всем понятно, что подземный вестибюль гораздо удобнее для всех и очень хорошо, что на этой станции был выбран именно такой вариант, а не стали экономить на удобстве (в Москве и в остальных городах России подавляющее большинство вестибюлей сейчас строят подземными с входами на каждой стороне перекрёстка, что очень удобно).
Всего за месяц ЗЕНИТ взял три трофея и одну станцию метро!
Заходите на мой сайт: Схема метро - История метрополитенов в схемах!
Заходите на мой сайт: Схема метро - История метрополитенов в схемах!
- 4pet
- Сообщения: 2674
- Зарегистрирован: 13 окт 2005, 13:59
- Станция метро: Ладожская
Re: Горный институт (проектное название "Большой проспект")
И что же удобного в подземном вестибюле на Горном? Посчитайте сколько там ступеней.
Это вам не Новочеркасская, где неглубокий спуск и тысяча выходов во все стороны.
Это вам не Новочеркасская, где неглубокий спуск и тысяча выходов во все стороны.