Балтийская. Второй выход
Модератор: Nomernoy
- Vladimir91
- Сообщения: 2158
- Зарегистрирован: 18 май 2009, 14:44
- Станция метро: Гражданский Проспект
- Откуда: СПб
Re: Балтийская. Второй выход
По-хорошему, вместо строительства второго выхода там напрашивается реконструкция наклона с заменой 3-х эскалаторов на 4. Но для этого понадобится закрытие на 1-2 года...
-
geda
- Сообщения: 40
- Зарегистрирован: 14 мар 2008, 13:07
Re: Балтийская. Второй выход
Vladimir91 писал(а):По-хорошему, вместо строительства второго выхода там напрашивается реконструкция наклона с заменой 3-х эскалаторов на 4. Но для этого понадобится закрытие на 1-2 года...
Вот самое оно. Предварительно можно построить Броневую, для электричек, а наземный транспорт распределить между Нарвской и Фрунзенской.
- в40
- Профессионал

- Сообщения: 14772
- Зарегистрирован: 05 фев 2009, 19:46
- Станция метро: Проспект Большевиков
- Откуда: Дачное
Re: Балтийская. Второй выход
Vladimir91 писал(а):По-хорошему, вместо строительства второго выхода там напрашивается реконструкция наклона с заменой 3-х эскалаторов на 4. Но для этого понадобится закрытие на 1-2 года...
Неужели один наклон с четырьмя эскалаторами лучше двух наклонов с шестью эскалаторами?
О=О=О=О=О=О=О=О=О=О=О=О=О=О=О=О=О=О=О
-
Tubeman
- Сообщения: 797
- Зарегистрирован: 29 ноя 2006, 20:27
- Откуда: Питер.Московская
Re: Балтийская. Второй выход
конечно лучше, учитывая что второй наклон будет вести в условное никуда с крайне сомнительным пассажиропотоком. как человек, который каждый день балтийской пользуется, могу дать прогноз, что в случае открытия второго выхода загруженность их будет ~ 90 на 10% и это ещё оптимистичный прогноз.
первый выход примыкает к вокзалу и к конечным/ключевым остановкам нота в этом районе, около второго трк и жалкие полтора маршрута автобуса, на которые с тем же успехом можно сесть у первого выхода. плюс тот мега район,о котором так любят говорить здесь. Ну грубо говоря и получится ~ 5 процентов жителей района, ~ 1.5 поситителей трк, 3.5~ случайных гостей. остальным 90 все равно первый выход всяко удобнее, хоть и толкаться там придётся
первый выход примыкает к вокзалу и к конечным/ключевым остановкам нота в этом районе, около второго трк и жалкие полтора маршрута автобуса, на которые с тем же успехом можно сесть у первого выхода. плюс тот мега район,о котором так любят говорить здесь. Ну грубо говоря и получится ~ 5 процентов жителей района, ~ 1.5 поситителей трк, 3.5~ случайных гостей. остальным 90 все равно первый выход всяко удобнее, хоть и толкаться там придётся
- russobalt-t
- Сообщения: 893
- Зарегистрирован: 27 июл 2007, 21:18
- Станция метро: Площадь Восстания
- Откуда: Село Децкое))
Re: Балтийская. Второй выход
Речь про Христолатор?Vladimir91 писал(а):По-хорошему, вместо строительства второго выхода там напрашивается реконструкция наклона с заменой 3-х эскалаторов на 4. Но для этого понадобится закрытие на 1-2 года...
- dts78spb
- Сообщения: 153
- Зарегистрирован: 17 авг 2018, 08:45
- Станция метро: Автово
Re: Балтийская. Второй выход
Есть вариант от Метростроя: "Узкобалюстрадный эскалатор КТП-V"
https://metrostroy-spb.ru/technology/metro/617/
https://metrostroy-spb.ru/technology/metro/617/
-
Igorix
- Сообщения: 368
- Зарегистрирован: 16 сен 2015, 15:16
- Станция метро: Купчино
Re: Балтийская. Второй выход
А я посмотрел на раскладку входов в подземный вестибюль (присоединяюсь к недоумению многих - зачем лезть под землю тут то??? В конце концов постройте сверху какое нибудь полезное здание!) и мне показалось, что одной из целей будет разделение транспорта. То есть некоторые маршруты автобусов смогут подъезжать не на перегруженную площадь Балтийского вокзала, а сюда с разворотом вокруг Варшавского. Не уверен что это адекватно, но в рамках полного отсутствия внеуличного транспорта восточнее Балтийской даже в планах - боюсь что единственно возможное решение.
- Vladimir91
- Сообщения: 2158
- Зарегистрирован: 18 май 2009, 14:44
- Станция метро: Гражданский Проспект
- Откуда: СПб
Re: Балтийская. Второй выход
в40 писал(а):Неужели один наклон с четырьмя эскалаторами лучше двух наклонов с шестью эскалаторами?
В данном случае лучше. Согласен с Tubeman, первый выход полностью завязан на вокзал и НОТ. Даже если раскидать остановки НОТа, вокзал всё равно никуда не деть, второй выход будет малопопулярен.
russobalt-t писал(а):Речь про Христолатор?
Почему? Насколько я помню, диаметр наклонов первой очереди позволяет без особых усилий уместить 4 классических эскалатора. В качестве примера - московская Бауманская, где во время реконструкции установили эскалаторы типа ЭС-02.
-
Адмирал
- Сообщения: 2247
- Зарегистрирован: 07 окт 2014, 21:16
- Станция метро: Юго-Западная
- Откуда: Санкт-Петербург
Re: Балтийская. Второй выход
Почему на Пл. Ленина, где тоже вокзал и большое кольцо НОТ, 2 выхода по 3 эскалатора, а не один четырёхленточный?
-
m1171
- Сообщения: 179
- Зарегистрирован: 12 дек 2008, 15:33
Re: Балтийская. Второй выход
Пассажиропоток там, безусловно, будет из ближайших ЖК, и даже, возможно, с той стороны Обводного (кому-то же нужно ехать на юг по КВЛ). Да и "Подъемтрансмаш" застроят тут же, с таким-то соседством.
А с уже построенным вторым выходом можно будет и первый наклон закрывать на реконструкцию на произвольное число лет, не думая о взвывшей в одночасье Фрунзенской.
А с уже построенным вторым выходом можно будет и первый наклон закрывать на реконструкцию на произвольное число лет, не думая о взвывшей в одночасье Фрунзенской.
- russobalt-t
- Сообщения: 893
- Зарегистрирован: 27 июл 2007, 21:18
- Станция метро: Площадь Восстания
- Откуда: Село Децкое))
Re: Балтийская. Второй выход
У моего сына там, за Фрунзенской, квартира в одном из новых ЖК. Лично мне, было бы удобнее от второго выхода Балтийской туда идти - сажусь на Владимирской. А там строят и строят - причём, если со стороны Московского более-менее дорогие ЖК, то с другой стороны Парфёновской строят человейники. Там народу будет побольше, чем в Северной долине.m1171 писал(а):Пассажиропоток там, безусловно, будет из ближайших ЖК
Ну и Измайловская Перспектива (в перспективе
) должна часть транспорта на себя оттянуть.Ну и надо понимать, что если нашим властям прис...пичило построить этот второй выход, спрашивать они никого не будут. Всяко, построить наклон в разы дешевле, чем перегон со станцией (и тем же наклонником). А пиар-результат - тот же.
-
Gleb
- Сообщения: 898
- Зарегистрирован: 22 май 2006, 23:11
- Станция метро: Новочеркасская
Re: Балтийская. Второй выход
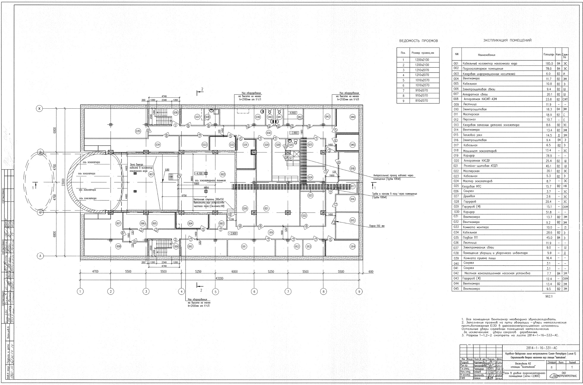
Схемы из проекта 2013 года, который в настоящее время корректирует "Ленметрогипротраснс".
Проект организации строительства:
Расположение второго вестибюля:
Расчетные пассажиропотоки:
Схемы подземного вестибюля:
Примыкание к станции второго НХ и отделение при строительстве:
Требования "ГУП "Петербургский метрополитен":
Проект организации строительства:
Расположение второго вестибюля:
Расчетные пассажиропотоки:
Схемы подземного вестибюля:
Примыкание к станции второго НХ и отделение при строительстве:
Требования "ГУП "Петербургский метрополитен":
- Alexsey
- Сообщения: 883
- Зарегистрирован: 25 янв 2005, 13:18
- Станция метро: Парк Победы
- Откуда: Санкт-Петербург метро Парк-Победы
- Контактная информация:
Re: Балтийская. Второй выход
вопрос напрашивается сам собой, а панно в конце зала, будет уничтожено так? Если эскалаторы прямо идут, а не под углами?
- Alexsey
- Сообщения: 883
- Зарегистрирован: 25 янв 2005, 13:18
- Станция метро: Парк Победы
- Откуда: Санкт-Петербург метро Парк-Победы
- Контактная информация:
Re: Балтийская. Второй выход
https://provodnik-of.livejournal.com/88571.html вот такая бодяга нас ждет?
-
Gleb
- Сообщения: 898
- Зарегистрирован: 22 май 2006, 23:11
- Станция метро: Новочеркасская
Re: Балтийская. Второй выход
Alexsey писал(а):вопрос напрашивается сам собой, а панно в конце зала, будет уничтожено так? Если эскалаторы прямо идут, а не под углами?
Ну, прочитайте же документы выше:
п. 2.1 требований ГУП "Петербургский метрополитен": Предусмотреть перенос панно...