Василеостровская. Второй выход
Модератор: Nomernoy
- mx
- Профессионал

- Сообщения: 4118
- Зарегистрирован: 14 сен 2005, 21:32
- Станция метро: -------
- Откуда: 59`50N 30`25E
Re: Василеостровская. Второй выход
Нет, история мутная. Непонятно, почему он ждал с этой постройкой почти до 2019 года? За предыдущие 20 лет ничего там не делалось, старые здания (видимо тот самый гараж) тупо сданы в аренду под торговлю. Неспроста это. И опять же - земля под вестибюлем не будет принадлежать городу. Насколько я понял в "дар" передадут только площади самого здания. Ничего хорошего в этом варианте не вижу.
Всё потому, что кто-то слишком много ест!
- kot
- Профессионал

- Сообщения: 8283
- Зарегистрирован: 21 июл 2007, 17:39
- Станция метро: Озерки
- Откуда: издалека
Re: Василеостровская. Второй выход
Сдаётся мне, вариант маловероятный.
Не смогут они договориться, погрязнут в судах и в результате о втором выходе придётся либо совсем забыть, либо он появится лет через двадцать в другом месте.
Скорее будет первый сценарий.
Не смогут они договориться, погрязнут в судах и в результате о втором выходе придётся либо совсем забыть, либо он появится лет через двадцать в другом месте.
Скорее будет первый сценарий.
Если не знаешь, что делать - не делай ничего.
- karhu
- Сообщения: 3938
- Зарегистрирован: 31 дек 2008, 19:14
- Станция метро: Василеостровская
- Откуда: Санкт-Петербург
Re: Василеостровская. Второй выход
Здание в стиле микрорайона. Очень хорошо.
"Ключик на 60 дайте, пожалуйста".
- ArtTrapeza
- Сообщения: 828
- Зарегистрирован: 30 дек 2006, 11:56
- Станция метро: Проспект Просвещения
Re: Василеостровская. Второй выход
Остальные картинки с сайта «Город 812»:
С сайта Администрации Санкт-Петербурга:
С сайта Администрации Санкт-Петербурга:
-
Svjazist
- Сообщения: 843
- Зарегистрирован: 08 май 2011, 17:31
- Станция метро: Зоопарк
- Откуда: Санкт-Петербург
Re: Василеостровская. Второй выход
kot писал(а):Сдаётся мне, вариант маловероятный.
Не смогут они договориться, погрязнут в судах и в результате о втором выходе придётся либо совсем забыть, либо он появится лет через двадцать в другом месте.
Скорее будет первый сценарий.
А они действительно могут погрязнуть в судах, особенно если этот самый Давид Мария окажется сыном супругов Мюллер-Мееркатц - членов совета основателей "Amway" (всемирная "паутина" по распространению средств для красоты, здоровья и тому подобного).
-
Manhattan
- Сообщения: 1721
- Зарегистрирован: 20 сен 2012, 21:39
- Станция метро: Приморская
Re: Василеостровская. Второй выход
Я не понимаю что мешает согласиться, просто договор грамотно составить и все.
Да и какая разница нам, горожанам, в чьей собственности будет земля под вестибюлем?
Что же касается "необходимости перепроектирования", то - если уж решили, что вестибюль будет наземным и встроенным в здание - хорошо бы так и разрабатывать, "вестибюль с возможностью встраивания в здание". Без самого здания. Как на Спасской. Просто некие ограничения на параметры здания заложить в проект, и все.
Да и какая разница нам, горожанам, в чьей собственности будет земля под вестибюлем?
Что же касается "необходимости перепроектирования", то - если уж решили, что вестибюль будет наземным и встроенным в здание - хорошо бы так и разрабатывать, "вестибюль с возможностью встраивания в здание". Без самого здания. Как на Спасской. Просто некие ограничения на параметры здания заложить в проект, и все.
- mx
- Профессионал

- Сообщения: 4118
- Зарегистрирован: 14 сен 2005, 21:32
- Станция метро: -------
- Откуда: 59`50N 30`25E
Re: Василеостровская. Второй выход
Manhattan писал(а):Что же касается "необходимости перепроектирования", то - если уж решили, что вестибюль будет наземным и встроенным в здание - хорошо бы так и разрабатывать, "вестибюль с возможностью встраивания в здание".
А когда это так решили?
kot писал(а):Не смогут они договориться, погрязнут в судах и в результате о втором выходе придётся либо совсем забыть, либо он появится лет через двадцать в другом месте.
Тут надо помнить, что это не столько второй выход "Василеостровской", как первый выход "Василеостровской-2". Когда-нибудь начнут и кольцо. А по поводу "договориться" - это хороший тест для Албина, раз он так ратует за метро. Посмотрим как решит вопрос с независимым частным собственником, к тому же иностранцем. Это не Метрострой гнобить.
Всё потому, что кто-то слишком много ест!
- Nomernoy
- Профессионал

- Сообщения: 5180
- Зарегистрирован: 10 окт 2005, 16:25
- Станция метро: Театральная
- Откуда: Санкт-Петербург
Re: Василеостровская. Второй выход
Похоже, что идея возвести торговый комплекс над вестибюлем уже давно в умах некоторых наших предприимчивых соотечественников, а тут вдруг такой конкурент, еще и заморских кровей. Непорядок!

- Павел
- Сообщения: 528
- Зарегистрирован: 22 июн 2004, 11:30
- Откуда: спб
Re: Василеостровская. Второй выход
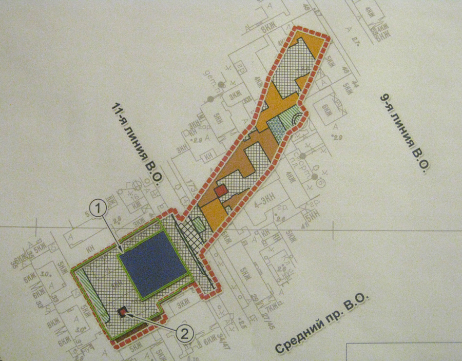
...а зачем такая кишка к 9 линии, если станция находиться на Среднем, т.е. влево-внизу???
А вы знаете , что терапевт - это 1024 гигапевта или 1048576 мегапевтов
-
aks
- Сообщения: 329
- Зарегистрирован: 19 июл 2008, 11:09
- Станция метро: Брестская
- Откуда: Ленинский проспект
Re: Василеостровская. Второй выход
Дык это скорее всего зона укрепления фундаментов над наклонным ходом.
- Павел
- Сообщения: 528
- Зарегистрирован: 22 июн 2004, 11:30
- Откуда: спб
Re: Василеостровская. Второй выход
посмотрел по OSM всё верно - створ наклонника, просто думал что Василеостровская расположена более южнее на прямой линии "вестибюль-11 линия 38"
А вы знаете , что терапевт - это 1024 гигапевта или 1048576 мегапевтов
-
Чур
- Сообщения: 256
- Зарегистрирован: 05 ноя 2009, 12:41
- Станция метро: Брестская
- Контактная информация:
Re: Василеостровская. Второй выход
Svjazist писал(а):kot писал(а):Сдаётся мне, вариант маловероятный.
Не смогут они договориться, погрязнут в судах и в результате о втором выходе придётся либо совсем забыть, либо он появится лет через двадцать в другом месте.
Скорее будет первый сценарий.
А они действительно могут погрязнуть в судах, особенно если этот самый Давид Мария окажется сыном супругов Мюллер-Мееркатц - членов совета основателей "Amway" (всемирная "паутина" по распространению средств для красоты, здоровья и тому подобного).
Говорят, что он самый ровно и есть.
- mx
- Профессионал

- Сообщения: 4118
- Зарегистрирован: 14 сен 2005, 21:32
- Станция метро: -------
- Откуда: 59`50N 30`25E
Re: Василеостровская. Второй выход
В проекте плана-графика на 2019 год запланировали корректировку проекта вторых выходов "Василеостровской" и "Балтийской". Каждый по 100 с лишним миллионов и срок окончания декабрь 2020 (!) года. Напомню, что контракт на проектирование начался в 2013 году. Семь лет проектировать и перепроектировать не такой уж уникальный объект! Просто тупо затягивают начало работ под предлогом изменившихся требований, а на самом деле неспособности организовать работу.
Всё потому, что кто-то слишком много ест!
- karhu
- Сообщения: 3938
- Зарегистрирован: 31 дек 2008, 19:14
- Станция метро: Василеостровская
- Откуда: Санкт-Петербург
Re: Василеостровская. Второй выход
А то, что деньги уходят в пустоту, на это нужно закрыть глаза?
"Ключик на 60 дайте, пожалуйста".
-
Serg
- Сообщения: 161
- Зарегистрирован: 24 ноя 2005, 09:06
- Станция метро: Достоевская
Re: Василеостровская. Второй выход
karhu писал(а):А то, что деньги уходят в пустоту, на это нужно закрыть глаза?
Это не пустота, а вполне конкретные физические и юридические лица...