Фрунзенский радиус. Вторая очередь. Общая тема
Модератор: Nomernoy
-
m1171
- Сообщения: 179
- Зарегистрирован: 12 дек 2008, 15:33
Re: Фрунзенский радиус. Вторая очередь. Общая тема
А есть вероятность запуска доп.станций одновременно с переходом на 8 вагонов?
-
Svjazist
- Сообщения: 843
- Зарегистрирован: 08 май 2011, 17:31
- Станция метро: Зоопарк
- Откуда: Санкт-Петербург
Re: Фрунзенский радиус. Вторая очередь. Общая тема
Суд не дал Смольному порвать с «Метростроем» один из контрактов по строительству Фрунзенского радиуса
https://www.fontanka.ru/2019/08/07/077/?utm_source=yxnews&utm_medium=desktop
Арбитражный суд Петербурга занял сторону «Метростроя» в споре со Смольным и запретил городской Дирекции транспортного строительства разрывать контракт на инженерную подготовку территорий для трех станций метро – «Проспект Славы», «Дунайская» и «Шушары». Информация об этом размещена на сайте электронного правосудия 7 августа.
Полный текст решения еще не опубликован, однако сообщается, что иск удовлетворен полностью. Он был подан после того, как в январе 2019 года власти расторгли с компанией три контракта из четырех. Тогда Смольному потребовалось 10 дней, чтобы передумать, но одно из соглашений – на подготовку территорий за 391 млн рублей – не стали возобновлять. Именно это решение городских чиновником «Метрострой» требовал признать недействительным.
На сегодняшний день, как следует из системы госзакупок, «Метрострой» получил по этому соглашению 229 млн рублей.
https://www.fontanka.ru/2019/08/07/077/?utm_source=yxnews&utm_medium=desktop
Арбитражный суд Петербурга занял сторону «Метростроя» в споре со Смольным и запретил городской Дирекции транспортного строительства разрывать контракт на инженерную подготовку территорий для трех станций метро – «Проспект Славы», «Дунайская» и «Шушары». Информация об этом размещена на сайте электронного правосудия 7 августа.
Полный текст решения еще не опубликован, однако сообщается, что иск удовлетворен полностью. Он был подан после того, как в январе 2019 года власти расторгли с компанией три контракта из четырех. Тогда Смольному потребовалось 10 дней, чтобы передумать, но одно из соглашений – на подготовку территорий за 391 млн рублей – не стали возобновлять. Именно это решение городских чиновником «Метрострой» требовал признать недействительным.
На сегодняшний день, как следует из системы госзакупок, «Метрострой» получил по этому соглашению 229 млн рублей.
-
satspb
- Сообщения: 141
- Зарегистрирован: 17 фев 2008, 05:15
Re: Фрунзенский радиус. Вторая очередь. Общая тема
m1171 писал(а):А есть вероятность запуска доп.станций одновременно с переходом на 8 вагонов?
А Вагоны где взять? А главное - есть ли смысл.. Все подготовлено под 7 вагонов, под 8 надо двигать по новой зеркала, мониторы, таблички...
- Brayn
- Сообщения: 945
- Зарегистрирован: 17 янв 2007, 10:40
- Станция метро: Девяткино
Re: Фрунзенский радиус. Вторая очередь. Общая тема
influential_noise писал(а):Электропоездами в конце июля обкатывали в течение недели. Потом электровозом и хоз поездом. Сейчас обкатки, насколько знаю, нет
Как выяснилось обкатка идёт.
https://vk.com/video-149018384_456239086
С группы в контакте:" Метрострой. История петербургского метро"
Фанат Naruto!
- MaksegZ
- Сообщения: 4551
- Зарегистрирован: 15 янв 2006, 06:54
- Станция метро: Московская
- Откуда: Питер
- Контактная информация:
Re: Фрунзенский радиус. Вторая очередь. Общая тема
satspb писал(а):А Вагоны где взять? А главное - есть ли смысл.. Все подготовлено под 7 вагонов, под 8 надо двигать по новой зеркала, мониторы, таблички...
на ФПЛ как раз все подготовлено под 8, 7 будет на Правобережной
Дунайская течёт... как вы судно назовёте, так оно и поплывёт 
"Надо строить быстро, качественно и недорого" © правительство СПб
Создал чат в ТГ, присоединяемся - https://t.me/subwaytalks

"Надо строить быстро, качественно и недорого" © правительство СПб
Создал чат в ТГ, присоединяемся - https://t.me/subwaytalks
-
r154
- Сообщения: 19
- Зарегистрирован: 10 авг 2014, 09:59
- Станция метро: Проспект Славы
Re: Фрунзенский радиус. Вторая очередь. Общая тема
Это были не выходные.Serg писал(а):Устали люди. А когда еще выпить, как ни в выходные...
По теме: что-то Беглов мягко стелет. Видимо понял, что не успевают. Времени мало осталось, совсем мало.
Если до выборов не запустят, то стройка может затянуться на неопределённое время.
Вопрос к специалистам. Рядом с домом 67 по новой срыли грунт метра на полтора. И положили на дно некую чёрную как бы ткань. Не рубероид. Для чего ?
После ливня эта широкая траншея превратилась в плавательный бассейн
- AntonK_007
- Сообщения: 681
- Зарегистрирован: 01 авг 2004, 21:32
- Станция метро: Адмиралтейская-1
- Откуда: Санкт-Петербург
Re: Фрунзенский радиус. Вторая очередь. Общая тема
Subtransit, пожалуй лучший симулятор метрополитена.
-
Алексей Евгенич
- Сообщения: 926
- Зарегистрирован: 18 дек 2008, 15:33
- Станция метро: Дунайская
Re: Фрунзенский радиус. Вторая очередь. Общая тема
Никак не пойму.
Вот сегодня проезжал. Дунайская (где угол с Дунайским) получается один выход будет (с запада Бухарестской)? Т.к. напротив признаков выхода нет.
Вроде по плану должно было быть два (по обе стороны Бухарестской).
Вот сегодня проезжал. Дунайская (где угол с Дунайским) получается один выход будет (с запада Бухарестской)? Т.к. напротив признаков выхода нет.
Вроде по плану должно было быть два (по обе стороны Бухарестской).
- GelezinisVilkas
- Сообщения: 3746
- Зарегистрирован: 15 май 2015, 12:19
- Станция метро: Дунайская
Re: Фрунзенский радиус. Вторая очередь. Общая тема
Кто вам такое сказал? Выходы только на нечётной стороне Бухарестской ул.
-
Алексей Евгенич
- Сообщения: 926
- Зарегистрирован: 18 дек 2008, 15:33
- Станция метро: Дунайская
Re: Фрунзенский радиус. Вторая очередь. Общая тема
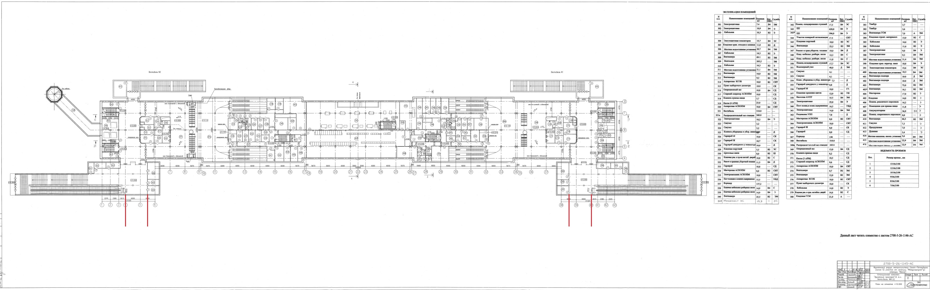
Да как то спрашивал не так давно - отослали к рисункам с проектами в начале ветки. А в тех рисунках были выходы на обе стороны (правда, схемы 2012 года, других не видел свежее).
Может, таки кто даст ссылку на действительный проект, по которому построено?
ЗЫ: я за транспортной темой слежу нынедовольно спорадически, увы, так что трудновато ориентироваться в изменениях...
Может, таки кто даст ссылку на действительный проект, по которому построено?
ЗЫ: я за транспортной темой слежу нынедовольно спорадически, увы, так что трудновато ориентироваться в изменениях...
- Вложения
-
- 777222_153ум..jpg (69.8 КБ) 5830 просмотров
- GelezinisVilkas
- Сообщения: 3746
- Зарегистрирован: 15 май 2015, 12:19
- Станция метро: Дунайская
- в40
- Профессионал

- Сообщения: 14816
- Зарегистрирован: 05 фев 2009, 19:46
- Станция метро: Проспект Большевиков
- Откуда: Дачное
Re: Фрунзенский радиус. Вторая очередь. Общая тема
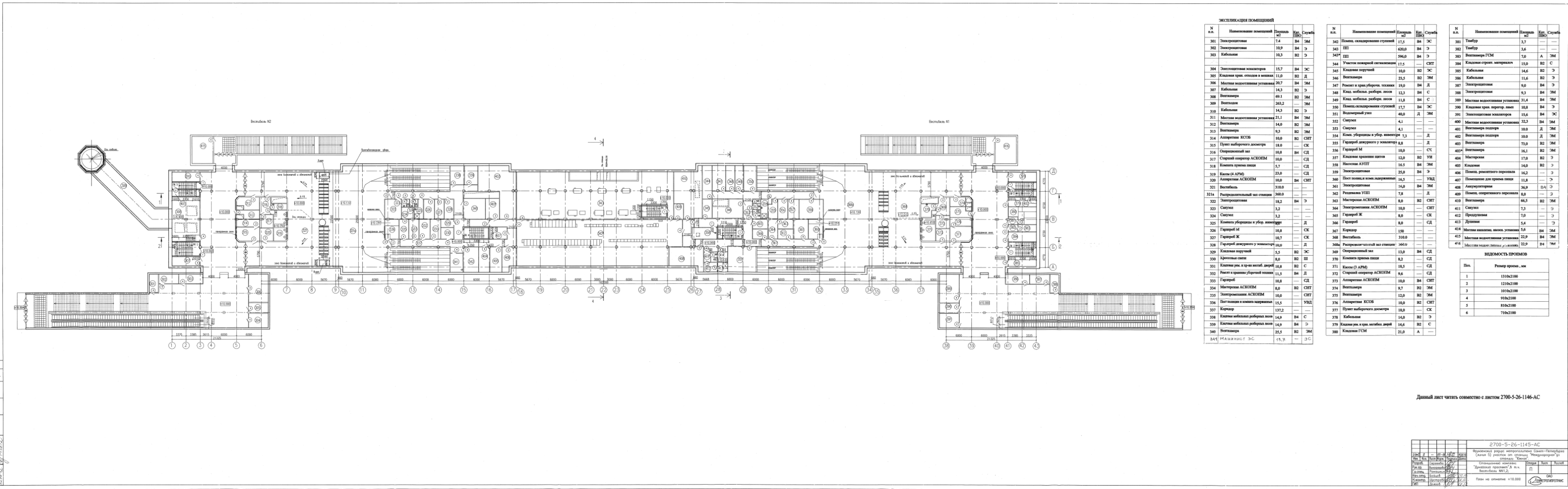
А примерно так должны примыкать к станции подземные переходы (в перспективе):
О=О=О=О=О=О=О=О=О=О=О=О=О=О=О=О=О=О=О
-
Алексей Евгенич
- Сообщения: 926
- Зарегистрирован: 18 дек 2008, 15:33
- Станция метро: Дунайская
Re: Фрунзенский радиус. Вторая очередь. Общая тема
Спасиб. Теперь все понятно как в проктоскоп.
Видимо, в 2012 году просто пририсовали переходы. В реальности их, видимо, сделают позже (т.е. никогда).
В принципе, на северном торце Дунайской выход на восток Бухарестской (четную сторону) и не особенно то нужен. А вот в южном торце, конечно, нужен уже сейчас.
Видимо, в 2012 году просто пририсовали переходы. В реальности их, видимо, сделают позже (т.е. никогда).
В принципе, на северном торце Дунайской выход на восток Бухарестской (четную сторону) и не особенно то нужен. А вот в южном торце, конечно, нужен уже сейчас.
-
a$3.14rin
- Сообщения: 79
- Зарегистрирован: 09 авг 2006, 15:32
- Станция метро: Дунайская
Re: Фрунзенский радиус. Вторая очередь. Общая тема
Алексей Евгенич писал(а):Спасиб. Теперь все понятно как в проктоскоп.
Видимо, в 2012 году просто пририсовали переходы. В реальности их, видимо, сделают позже (т.е. никогда).
В принципе, на северном торце Дунайской выход на восток Бухарестской (четную сторону) и не особенно то нужен. А вот в южном торце, конечно, нужен уже сейчас.
Да не особо нужен. Светофор на углу Гашека и Бухарестской есть, и надеюсь его никто не планирует убирать. Нечего городить никому не нужные подземники.
- в40
- Профессионал

- Сообщения: 14816
- Зарегистрирован: 05 фев 2009, 19:46
- Станция метро: Проспект Большевиков
- Откуда: Дачное
Re: Фрунзенский радиус. Вторая очередь. Общая тема
Чем больше будет лестничных спусков с разных сторон улиц (площадей), тем удобнее для пассажиров метро: не нужно дожидаться разрешающего сигнала светофора, чтобы перейти через улицу до входа в метро (или наоборот). А для пешеходов - да, спускаться всякий раз в подземный переход, чтобы перейти на другую сторону - удовольствие из малоприятных.
О=О=О=О=О=О=О=О=О=О=О=О=О=О=О=О=О=О=О