Адмиралтейская

Здесь обсуждаем строительство новых и ремонт существущих сооружений метрополитена .

Модератор: Nomernoy

Закрыто
Аватара пользователя
Till
Сообщения: 2050
Зарегистрирован: 02 янв 2005, 16:54
Станция метро: Академическая
Откуда: Ленинград

Re: Адмиралтейская

Сообщение Till »

А почему, собственно, мы говорим только о взаимоисключающих возможностях? Почему невозможно задействовать и Кирпичный, и фасад к "Невскому"? Два входа-выхода лучше одного.
Осторожно, двери закрываются!.. Следующая станция... О! А вот и она!

В ранней юности моей мечтой было увидеть ленинградское метро с восемью линиями. Сейчас моя мечта - увидеть петербургское метро без НИПа и рекламы. Как меняются времена!
Аватара пользователя
Шуруп
Сообщения: 287
Зарегистрирован: 24 июл 2007, 06:32

Re: Адмиралтейская

Сообщение Шуруп »

Из описания: "Входная группа в многофункциональный комплекс организована со стороны фасада выходящего на Невский проспект."
Аватара пользователя
Almak
Сообщения: 724
Зарегистрирован: 18 янв 2009, 11:41
Станция метро: Купчино

Re: Адмиралтейская

Сообщение Almak »

Вот тут viewtopic.php?f=23&t=7031 в статьях говорилось, что, из-за устройства торгового комплекса в здании, площадь вестибюля "Адмиралтейской" придётся уменьшить, а также упростить его архитектурное решение.
А вот тут приведен, как я понимаю, новый проект вестибюля, уже без стеклянного купола: viewtopic.php?f=23&t=7075
Вложения
Копия сканирование0003.jpg
Аватара пользователя
goodspeedy
Сообщения: 104
Зарегистрирован: 16 июл 2010, 10:27
Станция метро: Гостиный Двор

Re: Адмиралтейская

Сообщение goodspeedy »

шустро они эту кирпичную стеночку возводят.
Вложения
IMAG0240.jpg
Аватара пользователя
Brayn
Сообщения: 945
Зарегистрирован: 17 янв 2007, 10:40
Станция метро: Девяткино

Re: Адмиралтейская

Сообщение Brayn »

Что за синие прутья на фото goodspeedy на 208 странице?
Фанат Naruto!
Аватара пользователя
SAM
Сообщения: 378
Зарегистрирован: 26 фев 2008, 00:13
Станция метро: Кудрово
Откуда: Санкт-Петербург

Re: Адмиралтейская

Сообщение SAM »

Мда....Проект.... Бедненько, но чистенько :-(
Аватара пользователя
Шуруп
Сообщения: 287
Зарегистрирован: 24 июл 2007, 06:32

Re: Адмиралтейская

Сообщение Шуруп »

Brayn писал(а):Что за синие прутья на фото goodspeedy на 208 странице?

Леса?
Аватара пользователя
Florstein
Сообщения: 2889
Зарегистрирован: 03 окт 2005, 18:03
Станция метро: Проспект Ветеранов
telegram: https://t.me/wikiphotospace

Re: Адмиралтейская

Сообщение Florstein »

Не хочется быть банальным, но в сравнении с этим - земля и небо, песок и овёс... Вот она и самая долгожданная станция. :(
Вложения
file.jpg
my_name_ufo
Сообщения: 9
Зарегистрирован: 12 авг 2011, 21:07
Станция метро: Выборгская

Re: Адмиралтейская

Сообщение my_name_ufo »

дддда...грусно
на первоночальном варианте попахивает китчем..но это ли плохо хотябы гденибуть
ну и последний вариант тоже лучше чем ничего..
Аватара пользователя
karhu
Сообщения: 3938
Зарегистрирован: 31 дек 2008, 19:14
Станция метро: Василеостровская
Откуда: Санкт-Петербург

Re: Адмиралтейская

Сообщение karhu »

Панно какое красивое! :)
И можно будет ориентироваться гоекритинам по розе ветров с указанием сторон света. Это вам не хухры.. вымя горьковское. :P
"Ключик на 60 дайте, пожалуйста".
Аватара пользователя
Константин Филиппов
Сообщения: 4923
Зарегистрирован: 06 окт 2004, 11:02
Станция метро: Озерки
Откуда: Санкт-Петербург
Контактная информация:

Re: Адмиралтейская

Сообщение Константин Филиппов »

Это если у них хватит ума расположить её правильно, а то будет стрелка север на какой-нибуть юго-восток указывать.
Ꙁа Россию!!!
Randy
Сообщения: 3170
Зарегистрирован: 25 янв 2005, 13:31

Re: Адмиралтейская

Сообщение Randy »

karhu писал(а):Панно какое красивое! :)
И можно будет ориентироваться гоекритинам


шо за воинствующий сионизм :D
Аватара пользователя
MaksegZ
Сообщения: 4551
Зарегистрирован: 15 янв 2006, 06:54
Станция метро: Московская
Откуда: Питер
Контактная информация:

Re: Адмиралтейская

Сообщение MaksegZ »

Мда... я, конечно, знал, что для ПМ на первом месте бабло, но чтобы до такой степени. Ещё одна потеря в списке, предыдущей был вроде бы вестибюль Звенигородской.
Дунайская течёт... как вы судно назовёте, так оно и поплывёт :)

"Надо строить быстро, качественно и недорого" © правительство СПб

Создал чат в ТГ, присоединяемся - https://t.me/subwaytalks
Аватара пользователя
karhu
Сообщения: 3938
Зарегистрирован: 31 дек 2008, 19:14
Станция метро: Василеостровская
Откуда: Санкт-Петербург

Re: Адмиралтейская

Сообщение karhu »

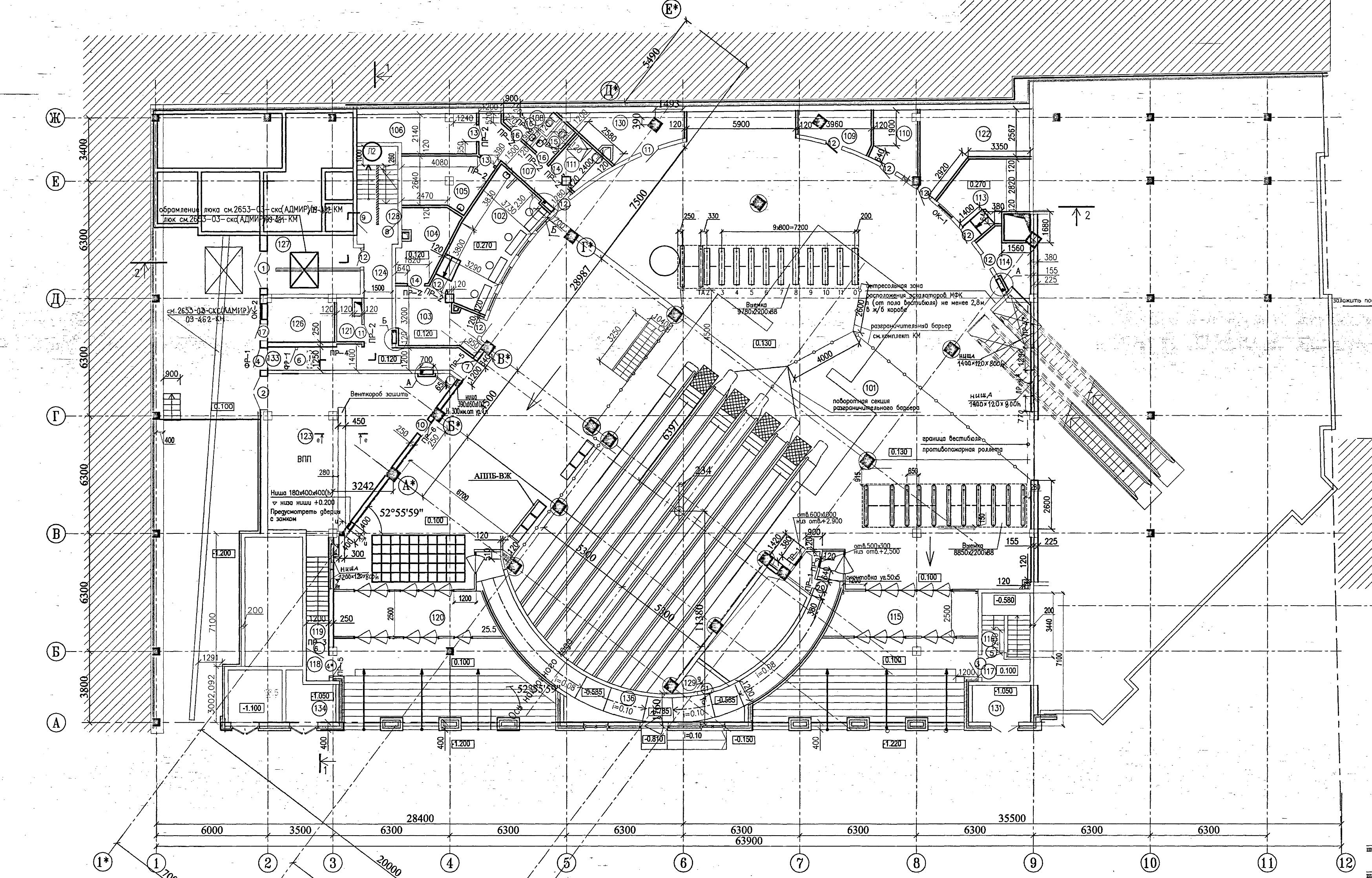
Есть кое-что интересное от RAID'a
http://spb-projects.ru/forum/viewtopic. ... 287#104287
download.jpg
"Ключик на 60 дайте, пожалуйста".
Аватара пользователя
djtonik
Отец-основатель
Отец-основатель
Сообщения: 6769
Зарегистрирован: 15 апр 2004, 07:02
last_fm: djtonik
Станция метро: Сосновая Поляна
Откуда: Санкт-Петербург
Контактная информация:

Re: Адмиралтейская

Сообщение djtonik »

Сжатый, узкий, тесный скотозагон — вот что получится в итоге.
Тройное «ку» господам инвесторам.
...партия сказала «надо» — метрострой ответил «есть»...
---
Закрыто

Вернуться в «Строящееся метро»