Беговая (Улица Савушкина)
Модератор: Nomernoy
- 71-153
- Сообщения: 303
- Зарегистрирован: 20 май 2007, 17:29
- Станция метро: Бухарестская
- Откуда: Санкт-Петербург
Re: Беговая (Улица Савушкина)
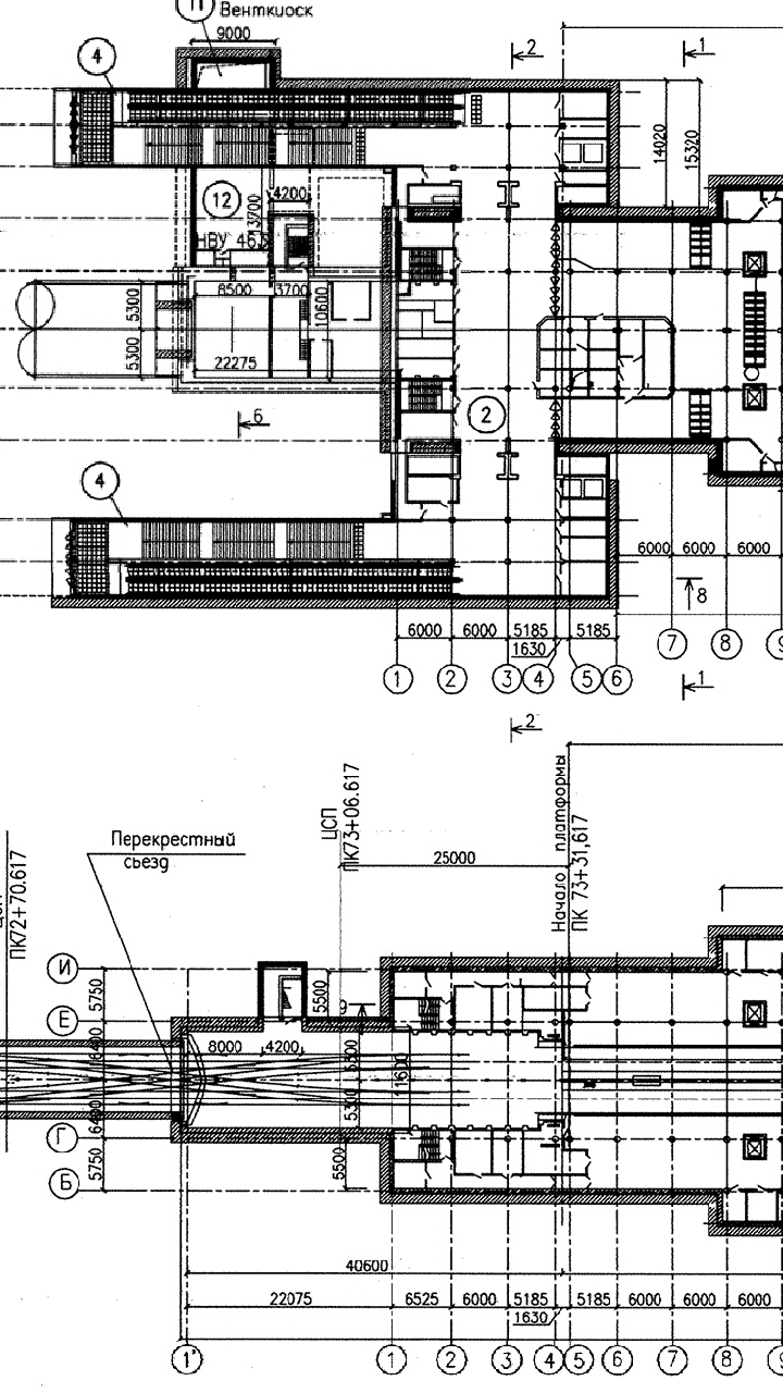
Проем под выход на фото расположен именно в осях 1-5.
Пунктир - это конструкции 463-го "ствола"
Пунктир - это конструкции 463-го "ствола"
- в40
- Профессионал

- Сообщения: 14816
- Зарегистрирован: 05 фев 2009, 19:46
- Станция метро: Проспект Большевиков
- Откуда: Дачное
Re: Беговая (Улица Савушкина)
Если точнее - узел примыкания НВУ-463 к двухпутному тоннелю.
О=О=О=О=О=О=О=О=О=О=О=О=О=О=О=О=О=О=О
- karhu
- Сообщения: 3938
- Зарегистрирован: 31 дек 2008, 19:14
- Станция метро: Василеостровская
- Откуда: Санкт-Петербург
Re: Беговая (Улица Савушкина)
Значит узел примыкания к двухпутному тоннелю удлинили от оси 1'-1 до 1'-4.
А проёмы скорее всего перенесли в оси 1-3.
Я скорее всего ошибаюсь.
Но есть одно "но".
На последней фотографии точно часть узла примыкания к ДТ и НВУ с проёмами выхода на поверхность, т.к.тименно здесь примняются расстрелы, нет свай колонн, да и визульно она уже.
Но самый главный аргумен - что в той части, что на чертеже в осях 1-5, уже давно залиты плиты +15.900 и +10.400.
Либо на фотографии не проёмы выхода.
А проёмы скорее всего перенесли в оси 1-3.
Я скорее всего ошибаюсь.
Но есть одно "но".
На последней фотографии точно часть узла примыкания к ДТ и НВУ с проёмами выхода на поверхность, т.к.тименно здесь примняются расстрелы, нет свай колонн, да и визульно она уже.
Но самый главный аргумен - что в той части, что на чертеже в осях 1-5, уже давно залиты плиты +15.900 и +10.400.
Либо на фотографии не проёмы выхода.
"Ключик на 60 дайте, пожалуйста".
- Nomernoy
- Профессионал

- Сообщения: 5184
- Зарегистрирован: 10 окт 2005, 16:25
- Станция метро: Театральная
- Откуда: Санкт-Петербург
Re: Беговая (Улица Савушкина)
У меня вопрос появился: а какие мероприятия/сооружения на станции «Беговая» предусмотрены для перехода маневровых машинистов? То, что в межпутной стене возможны проёмы, это понятно, а что с мостиком вдоль путей?

- в40
- Профессионал

- Сообщения: 14816
- Зарегистрирован: 05 фев 2009, 19:46
- Станция метро: Проспект Большевиков
- Откуда: Дачное
- Nomernoy
- Профессионал

- Сообщения: 5184
- Зарегистрирован: 10 окт 2005, 16:25
- Станция метро: Театральная
- Откуда: Санкт-Петербург
Re: Беговая (Улица Савушкина)
в40
Как же быть машинисту в таком случае? Бежать спринтом через эскалаторы наверх и затем опять вниз? Как парность увеличенную-то соблюдать?
Как же быть машинисту в таком случае? Бежать спринтом через эскалаторы наверх и затем опять вниз? Как парность увеличенную-то соблюдать?

-
engineer kukan
- Сообщения: 35
- Зарегистрирован: 10 мар 2017, 14:09
- Станция метро: Бестужевская
Re: Беговая (Улица Савушкина)
может быть за перекрёстным съездом, как это было в девяткино, когда 2ой путь был на ремонте.
- Danyokkk
- Сообщения: 166
- Зарегистрирован: 08 июл 2009, 14:33
- Станция метро: Проспект Большевиков
Re: Беговая (Улица Савушкина)
Рендер "Беговой" из журнала "Строительство и городское хозяйство".
http://stroypuls.ru/gradostroitelnaya-politika/134183/
http://stroypuls.ru/gradostroitelnaya-politika/134183/
Следующая станция - Театральная ! ! !
- в40
- Профессионал

- Сообщения: 14816
- Зарегистрирован: 05 фев 2009, 19:46
- Станция метро: Проспект Большевиков
- Откуда: Дачное
Re: Беговая (Улица Савушкина)
Nomernoy писал(а):Как же быть машинисту в таком случае? Бежать спринтом через эскалаторы наверх и затем опять вниз? Как парность увеличенную-то соблюдать?
engineer kukan писал(а):может быть за перекрёстным съездом, как это было в девяткино, когда 2ой путь был на ремонте.
Мостик за перекрёстным съездом (в тоннеле) итак будет. Но он может использоваться только в межпик, когда интервалы между поездами довольно большие. А при малых интервалах, видимо, машинисты будут меняться на "Новокрестовской". А участок "Новокрестовская" - "Беговая" (с последующим оборотом поездов) будет обслуживаться несколькими маневровыми бригадами.
ЗЫ: кстати, это ещё один минус в репутацию станций с боковыми платформами для линий с двухпутными перегонными тоннелями.
О=О=О=О=О=О=О=О=О=О=О=О=О=О=О=О=О=О=О
- 71-153
- Сообщения: 303
- Зарегистрирован: 20 май 2007, 17:29
- Станция метро: Бухарестская
- Откуда: Санкт-Петербург
Re: Беговая (Улица Савушкина)
Сегодня залит первый участок плиты перекрытия на отм. +6.4 (оси 16-20)
- karhu
- Сообщения: 3938
- Зарегистрирован: 31 дек 2008, 19:14
- Станция метро: Василеостровская
- Откуда: Санкт-Петербург
Re: Беговая (Улица Савушкина)
71-153, спасибо за информацию.
Но хочется знать точно, залили полностю плиту в осях 16-20 и В-Ж, в том числе и над разобранным двухпутным тоннелем?
Но хочется знать точно, залили полностю плиту в осях 16-20 и В-Ж, в том числе и над разобранным двухпутным тоннелем?
"Ключик на 60 дайте, пожалуйста".
- 71-153
- Сообщения: 303
- Зарегистрирован: 20 май 2007, 17:29
- Станция метро: Бухарестская
- Откуда: Санкт-Петербург
Re: Беговая (Улица Савушкина)
Пока залит пролет только над двухпутным тоннелем, через пару дней зальют и бока.
- karhu
- Сообщения: 3938
- Зарегистрирован: 31 дек 2008, 19:14
- Станция метро: Василеостровская
- Откуда: Санкт-Петербург
Re: Беговая (Улица Савушкина)
Интерсно, на что опирается опалубка, на двутавры и леса, или только на леса?
"Ключик на 60 дайте, пожалуйста".
- karhu
- Сообщения: 3938
- Зарегистрирован: 31 дек 2008, 19:14
- Станция метро: Василеостровская
- Откуда: Санкт-Петербург
Re: Беговая (Улица Савушкина)
Жалко, что станция обделена частым освещением сроительства.
По неподверждённой информации уже разбирают лоток двухпутного тоннеля.
По неподверждённой информации уже разбирают лоток двухпутного тоннеля.
"Ключик на 60 дайте, пожалуйста".
- karhu
- Сообщения: 3938
- Зарегистрирован: 31 дек 2008, 19:14
- Станция метро: Василеостровская
- Откуда: Санкт-Петербург
Re: Беговая (Улица Савушкина)
"Ключик на 60 дайте, пожалуйста".