Красносельско-Калининская линия. Общая тема
Модератор: Nomernoy
-
Icefer
- Сообщения: 1421
- Зарегистрирован: 10 июл 2019, 22:38
- Станция метро: Морской Фасад
Re: Красносельско-Калининская линия. Общая тема
Послезавтра напишите итог года по проходкам ССВ и перегонного 843->845. От 841 к 843 так и не запускали ничего, я так понял?
- в40
- Профессионал

- Сообщения: 14816
- Зарегистрирован: 05 фев 2009, 19:46
- Станция метро: Проспект Большевиков
- Откуда: Дачное
Re: Красносельско-Калининская линия. Общая тема
От 841 к 843 ничего и не планировалось.
В 2021 году планируется ещё две проходки: ППТ от 842 к 843 (ориентировочно в феврале), а после её окончания - тупик ППТ от 842 к 841.
В 2021 году планируется ещё две проходки: ППТ от 842 к 843 (ориентировочно в феврале), а после её окончания - тупик ППТ от 842 к 841.
О=О=О=О=О=О=О=О=О=О=О=О=О=О=О=О=О=О=О
- karhu
- Сообщения: 3938
- Зарегистрирован: 31 дек 2008, 19:14
- Станция метро: Василеостровская
- Откуда: Санкт-Петербург
Re: Красносельско-Калининская линия. Общая тема
Я вот тоже не совсем понимаю, зачем лишний раз загружать шахту?
Почему не пройти 1 путь от 841 к 842?
Проблема в том что шахта во дворах жилых домов?
Вроде на 841 сейчас идут проходческие работы, копёр в наличии.
Можно даже сделать как на Театральной: чтобы бункера не "шумели" и не переполнялись, породу опрокидывать прямо на дневную поверхность, а на погрузку в самосвалы поставить экскаватор.
Почему не пройти 1 путь от 841 к 842?
Проблема в том что шахта во дворах жилых домов?
Вроде на 841 сейчас идут проходческие работы, копёр в наличии.
Можно даже сделать как на Театральной: чтобы бункера не "шумели" и не переполнялись, породу опрокидывать прямо на дневную поверхность, а на погрузку в самосвалы поставить экскаватор.
"Ключик на 60 дайте, пожалуйста".
- в40
- Профессионал

- Сообщения: 14816
- Зарегистрирован: 05 фев 2009, 19:46
- Станция метро: Проспект Большевиков
- Откуда: Дачное
Re: Красносельско-Калининская линия. Общая тема
karhu писал(а):Почему не пройти 1 путь от 841 к 842?
Потому, что шахта изначально была запроектирована не как рабочая, а как вентиляционная. Соответственно, размер строительной площадки очень мал и не позволяет смонтировать полноценный горный комплекс (ствол шахты имеет всего одну клеть, а не две), а дислокация шахты во дворе многоэтажных домов не позволяют организовать нормальную проходку с круглосуточным вагонообменом. Сами понимаете, при таких ограничениях ни о какой щитовой проходке и речи быть не может - только эректорная.
О=О=О=О=О=О=О=О=О=О=О=О=О=О=О=О=О=О=О
-
Gleb
- Сообщения: 898
- Зарегистрирован: 22 май 2006, 23:11
- Станция метро: Новочеркасская
Re: Красносельско-Калининская линия. Общая тема
Из статьи "Метростроя" по итогам года:
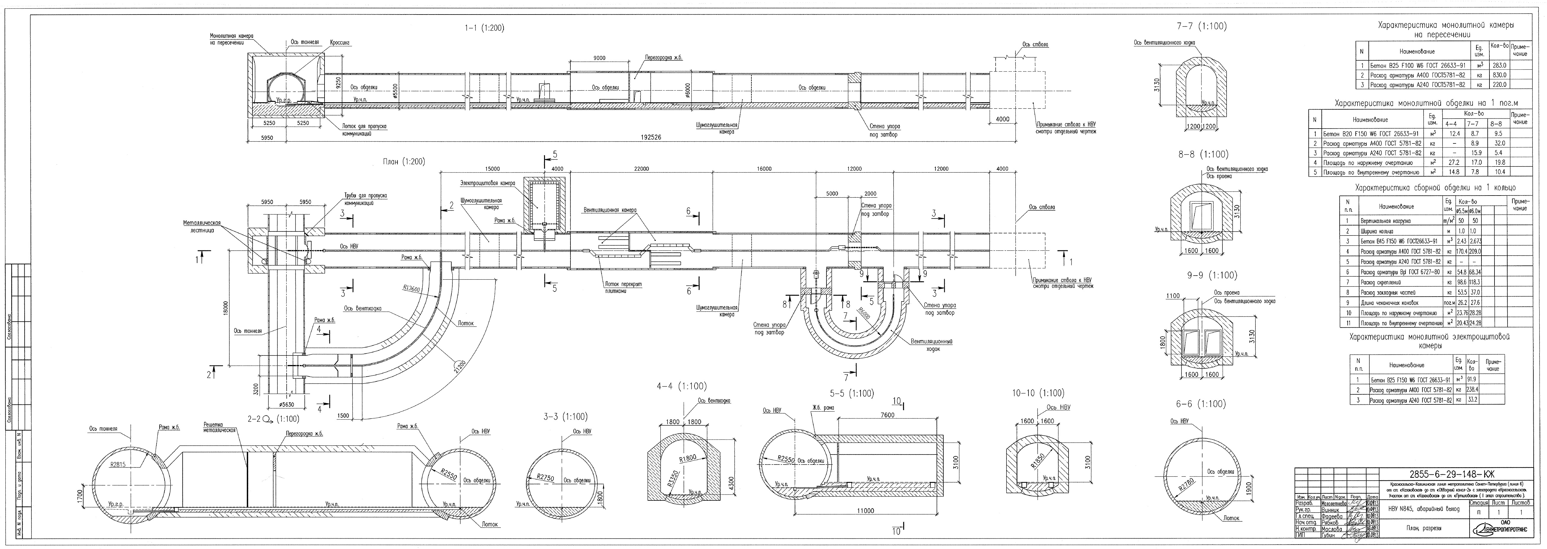
"...чуть больше четверти пути" - это чуть более 500 метров до окончания проходки в районе примыкания НВУ 845. Тогда, ориентировочно, щит прошел станцию "Путиловская" и сейчас около ПК 308.
На общей схеме:
Если ничего не изменилось в организации строительства, после завершения проходки в месте примыкания к НВУ 845 начнется сооружение монолитной камеры на пересечении (размеры: ширина 11,9 м, длина 7,1 м вдоль оси пути и высота 9,25 м) и непосредственно венттоннель к 845 шахте (ориентировочно 182 метра):
Параллельно в июне месяце от шахты 843 стартовал еще один щит, который прокладывает правый перегонный тоннель в сторону ст. «Путиловская». И здесь Метрострою остается пройти чуть больше четверти пути.
"...чуть больше четверти пути" - это чуть более 500 метров до окончания проходки в районе примыкания НВУ 845. Тогда, ориентировочно, щит прошел станцию "Путиловская" и сейчас около ПК 308.
На общей схеме:
Если ничего не изменилось в организации строительства, после завершения проходки в месте примыкания к НВУ 845 начнется сооружение монолитной камеры на пересечении (размеры: ширина 11,9 м, длина 7,1 м вдоль оси пути и высота 9,25 м) и непосредственно венттоннель к 845 шахте (ориентировочно 182 метра):
- mx
- Профессионал

- Сообщения: 4139
- Зарегистрирован: 14 сен 2005, 21:32
- Станция метро: -------
- Откуда: 59`50N 30`25E
Re: Красносельско-Калининская линия. Общая тема
А по схеме строительства центрального участка этот щит должен идти до "Броневой". Интересно, как теперь повернётся дело.
Всё потому, что кто-то слишком много ест!
- karhu
- Сообщения: 3938
- Зарегистрирован: 31 дек 2008, 19:14
- Станция метро: Василеостровская
- Откуда: Санкт-Петербург
Re: Красносельско-Калининская линия. Общая тема
Gleb писал(а):Если ничего не изменилось в организации строительства, после завершения проходки в месте примыкания к НВУ 845 начнется сооружение монолитной камеры на пересечении (размеры: ширина 11,9 м, длина 7,1 м вдоль оси пути и высота 9,25 м) и непосредственно венттоннель к 845 шахте (ориентировочно 182 метра):
Если её уже не построили.
"Ключик на 60 дайте, пожалуйста".
- в40
- Профессионал

- Сообщения: 14816
- Зарегистрирован: 05 фев 2009, 19:46
- Станция метро: Проспект Большевиков
- Откуда: Дачное
Re: Красносельско-Калининская линия. Общая тема
mx писал(а):А по схеме строительства центрального участка этот щит должен идти до "Броневой". Интересно, как теперь повернётся дело.
А теперь, к большому сожалению, его работа закончится у НВУ-845, где он и будет разобран, т.к. для строительства второго пускового участка ККЛ нет ни проекта, ни финансирования. (Не то, что в советские годы).
karhu писал(а):Если её уже не построили.
Даже не начинали.
О=О=О=О=О=О=О=О=О=О=О=О=О=О=О=О=О=О=О
- mx
- Профессионал

- Сообщения: 4139
- Зарегистрирован: 14 сен 2005, 21:32
- Станция метро: -------
- Откуда: 59`50N 30`25E
Re: Красносельско-Калининская линия. Общая тема
в40 писал(а):для строительства второго пускового участка ККЛ нет ни проекта, ни финансирования. (Не то, что в советские годы).
Проект вообще давно есть. Явно это проект базовый, менять станции и трассировку не будут, но последние пять лет его крутят-вертят, думают как бы ещё обрезать. Конкурсы-то на выделение этапов. К 2017 году например убрали вторые выходы "Броневой" и "Боровой", убрали тупики за "Заставской". Сейчас в планах уже второй конкурс на выделение этапов, ещё что-нибудь переиграют. Но в принципе это стройке не мешает, параллельно можно делать как на первой очереди. Деньги более серьёзная проблема.
Всё потому, что кто-то слишком много ест!
- Alexsey
- Сообщения: 898
- Зарегистрирован: 25 янв 2005, 13:18
- Станция метро: Парк Победы
- Откуда: Санкт-Петербург метро Парк-Победы
- Контактная информация:
Re: Красносельско-Калининская линия. Общая тема
mx писал(а):в40 писал(а):для строительства второго пускового участка ККЛ нет ни проекта, ни финансирования. (Не то, что в советские годы).
Проект вообще давно есть. Явно это проект базовый, менять станции и трассировку не будут, но последние пять лет его крутят-вертят, думают как бы ещё обрезать. Конкурсы-то на выделение этапов. К 2017 году например убрали вторые выходы "Броневой" и "Боровой", убрали тупики за "Заставской". Сейчас в планах уже второй конкурс на выделение этапов, ещё что-нибудь переиграют. Но в принципе это стройке не мешает, параллельно можно делать как на первой очереди. Деньги более серьёзная проблема.
Вопрос назрел? В 2017 этим участком кто занимался, наш ЛМГТ и все убрал, или отдали Шумакову МГТ? И сейчас, какие перспективы, что этот участок наши будут делать, а не Москвичи.
- mx
- Профессионал

- Сообщения: 4139
- Зарегистрирован: 14 сен 2005, 21:32
- Станция метро: -------
- Откуда: 59`50N 30`25E
Re: Красносельско-Калининская линия. Общая тема
Делает ЛМГТ и контракт ещё не закрыт, просто "завис". Новый контракт непонятно чей будет и будет ли вообще - в предыдущем плане-графике был, но отменён. А теперь кто знает, надо ждать новостей по МСС. Всё поставили на паузу пока там не решится.
Всё потому, что кто-то слишком много ест!
-
Gleb
- Сообщения: 898
- Зарегистрирован: 22 май 2006, 23:11
- Станция метро: Новочеркасская
Re: Красносельско-Калининская линия. Общая тема
К гос. контракту с АО "Метрогипротранс" на выполнение работ по разработке проектной документации по объекту: "Строительство участка Красносельско-Калининской линии метрополитена от станции "Казаковская" до станции "Сосновая поляна" подписано доп. соглашение №3 от 16.12.2020 г., в соответствии с которым официально оформлена приостановка работ по контракту, за 2020 год за выполненные работы оплата не предусмотрена (бурили все лето бесплатно), а также срок исполнения контракта перенесен с 31.12.2022 г. на 31.12.2024 г.
- mx
- Профессионал

- Сообщения: 4139
- Зарегистрирован: 14 сен 2005, 21:32
- Станция метро: -------
- Откуда: 59`50N 30`25E
Re: Красносельско-Калининская линия. Общая тема
Дела МГТ плохи, начали ссылаться в ходатайствах на "особую социальную значимость работ и возможный рост социальной напряженности", а это для суда точно не аргумент. Кроме того это дело вообще второстепенное, только об обеспечении, а основной иск - об отмене решения ФАС. А там принято решение об отмене решения ФАС и добрались уже до апелляции в Арбитражный суд Северо-Западного округа - выше только Верховный суд.
"Сосновую поляну" будем долго ждать.
"Сосновую поляну" будем долго ждать.
Всё потому, что кто-то слишком много ест!
-
Icefer
- Сообщения: 1421
- Зарегистрирован: 10 июл 2019, 22:38
- Станция метро: Морской Фасад
Re: Красносельско-Калининская линия. Общая тема
И хорошо. Глядишь сделают человеческое продление 8 линии от Гутуевского острова, и вместо странного хвоста вдоль петергофского шоссе в Стрельну - нормальная линия от центра. К какой именно линии отнесут Сосновую поляну не так важно, важно наличие пересадки где-то у Балтжемчужины или у пересечения проспекта героев с Ленинским
-
Svjazist
- Сообщения: 843
- Зарегистрирован: 08 май 2011, 17:31
- Станция метро: Зоопарк
- Откуда: Санкт-Петербург
Re: Красносельско-Калининская линия. Общая тема
Ха-ха, извините, позлорадствую. Вот уважаемые форумчане, вы пишите, не дождемся/долго ждать Сосновую поляну, описываете идеи про правильность "начертания" 8ой линии и т.д. Да вы что ей богу
Две(!) несчастные станции на юго-западе мусолят черт те сколько, а сколько десятилетий исполнилось этим великим помыслам и подготовкам к этому "метрорывку" городских властей? Такое впечатление, что они осуществляют мегапроект к переселению жителей города на Марс.
По поводу МГТ - добро пожаловать в наше безденежное болото. Особенно хороша сумма, предназначенная к выплате в 2024 год, в этом году, видимо ожидается затяжной золотой дождь (как минимум). Хотя на самом деле, всё проще, городские власти, подписавшие это, надеются в этот год им уже не сидеть у городского руля, а значит и не отвечать за выплату. А МГТ уже и деваться было не куда, тем более часть работ проведена; так хоть надежда на оплату, но они еще не знают Смольный. Вернее знают, но не верят, что и они могут попасть в историю, как некоторые бывшие гор. компании - подарить мост за свой счет, достроить мегастадион, взять кредиты на постройку станций и при этом остаться потом еще в "должным" Смольному.
Две(!) несчастные станции на юго-западе мусолят черт те сколько, а сколько десятилетий исполнилось этим великим помыслам и подготовкам к этому "метрорывку" городских властей? Такое впечатление, что они осуществляют мегапроект к переселению жителей города на Марс. По поводу МГТ - добро пожаловать в наше безденежное болото. Особенно хороша сумма, предназначенная к выплате в 2024 год, в этом году, видимо ожидается затяжной золотой дождь (как минимум). Хотя на самом деле, всё проще, городские власти, подписавшие это, надеются в этот год им уже не сидеть у городского руля, а значит и не отвечать за выплату. А МГТ уже и деваться было не куда, тем более часть работ проведена; так хоть надежда на оплату, но они еще не знают Смольный. Вернее знают, но не верят, что и они могут попасть в историю, как некоторые бывшие гор. компании - подарить мост за свой счет, достроить мегастадион, взять кредиты на постройку станций и при этом остаться потом еще в "должным" Смольному.