Путиловская

Модератор: Nomernoy

Ответить
Lekseika
Сообщения: 29
Зарегистрирован: 30 окт 2022, 07:24
Станция метро: Проспект Ветеранов

Re: Путиловская

Сообщение Lekseika »

Переход должны в августе начать, пока немерее начнут демонтаж на кз
Аватара пользователя
Ignat
Сообщения: 431
Зарегистрирован: 28 окт 2010, 02:29
last_fm: Ta6ypeTKo
Станция метро: Большеохтинская
Контактная информация:

Re: Путиловская

Сообщение Ignat »

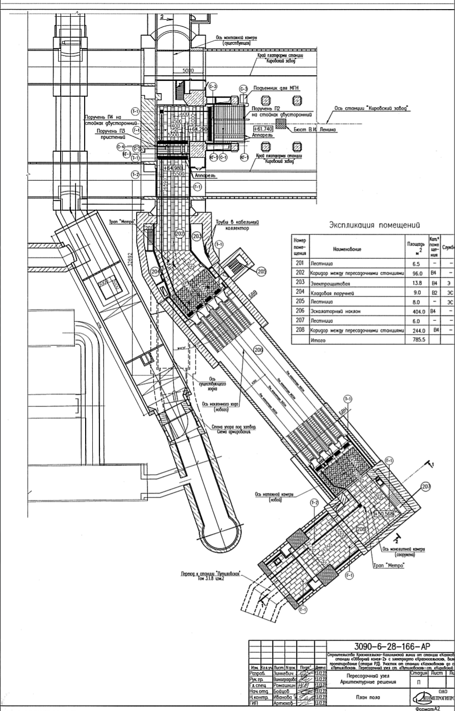
Наконец то выложили общеувязочный план пересадочного узла Путиловской по проекту МГТ (хоть уже и неактуальный):
ПМ-11-24-4АР17-2.jpg
Аватара пользователя
GelezinisVilkas
Сообщения: 3659
Зарегистрирован: 15 май 2015, 12:19
Станция метро: Дунайская

Re: Путиловская

Сообщение GelezinisVilkas »

Судя по плану, при 8-и вагоном формировании опять дверь последнего вагона не будет влезать на платформу.
:twisted:
Icefer
Сообщения: 1370
Зарегистрирован: 10 июл 2019, 22:38
Станция метро: Морской Фасад

Re: Путиловская

Сообщение Icefer »

Если этот неактуальный, то какой актуальный?
Аватара пользователя
koropet
Сообщения: 186
Зарегистрирован: 01 май 2012, 18:40
Станция метро: Электросила
Откуда: Санкт-Петербург

Re: Путиловская

Сообщение koropet »

GelezinisVilkas писал(а): 12 июл 2023, 12:03 опять
Всё там влезает. Стандартная платформа на 8 вагонов длиной 168м. Здесь еще нарисованы прозрачные ограждения, которые заканчиваются на последней двери и сразу после них идет стенка ограждения поперек платформы. Если все-таки их не поставят, будет как и везде, состав на 8 вагонов, сходные устройства которые расположены на платформе, но за пределами стоящего состава и только после них заканчивается платформа.
Аватара пользователя
Ignat
Сообщения: 431
Зарегистрирован: 28 окт 2010, 02:29
last_fm: Ta6ypeTKo
Станция метро: Большеохтинская
Контактная информация:

Re: Путиловская

Сообщение Ignat »

Ну раз спалили в закупках, видимо, больше не секрет :)
00.jpg
Аватара пользователя
TheSeaWind
Сообщения: 340
Зарегистрирован: 28 июн 2022, 14:52
Станция метро: Балтийская Жемчужина
Откуда: Улица Маршала Захарова

Re: Путиловская

Сообщение TheSeaWind »

Да. По чертежу видно сделают ходок от шахты левее
Вложения
Пересадочный узел Путиловской на Кировский завод
Пересадочный узел Путиловской на Кировский завод
Федеральное финансирование Петербургскому метрополитену!
geda
Сообщения: 42
Зарегистрирован: 14 мар 2008, 13:07
Станция метро: Адмиралтейская-1

Re: Путиловская

Сообщение geda »

Получается Ленин будет прямо перед лестницей стоять? Не будет ли мешать проходу?
Аватара пользователя
W0LF
Сообщения: 754
Зарегистрирован: 09 ноя 2019, 21:50
Станция метро: Рыбацкое

Re: Путиловская

Сообщение W0LF »

Будет мешать - подвинут.
Аватара пользователя
koropet
Сообщения: 186
Зарегистрирован: 01 май 2012, 18:40
Станция метро: Электросила
Откуда: Санкт-Петербург

Re: Путиловская

Сообщение koropet »

Под Ленина отдельный фундамент под платформой нужен. Это целое дело решить чье помещение внизу можно залить бетоном.
Чау-чау
Сообщения: 2589
Зарегистрирован: 26 ноя 2011, 19:20
Станция метро: Шкиперская

Re: Путиловская

Сообщение Чау-чау »

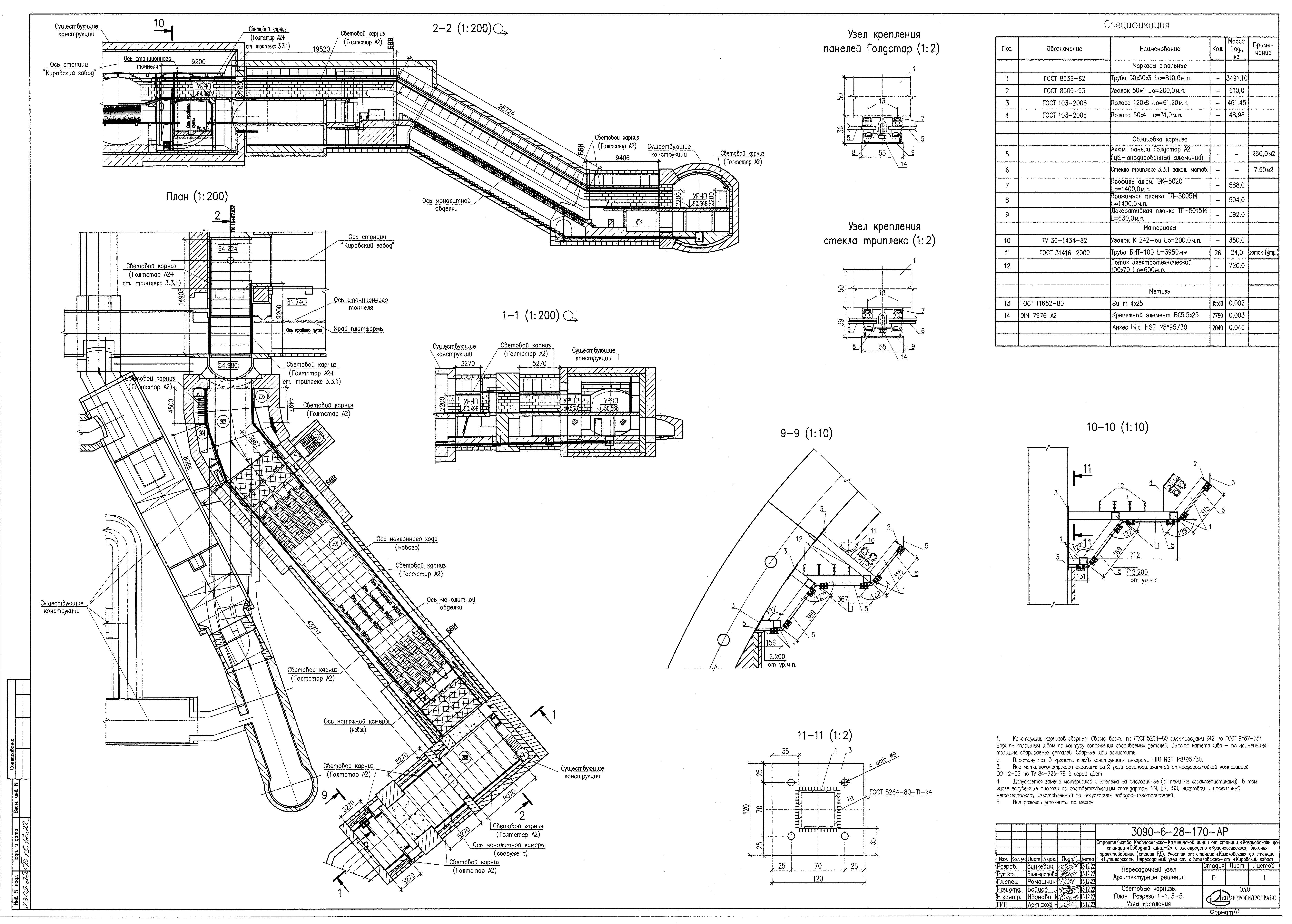
Колонный ряд по 2 пути завершён
5GXxSBtce28[1].jpg
https://vk.com/podzemnik_spb
Аватара пользователя
Metroschemes
Сообщения: 6499
Зарегистрирован: 22 окт 2005, 04:19
last_fm: Metroschemes
Станция метро: Парнас
Откуда: Питер
Контактная информация:

Re: Путиловская

Сообщение Metroschemes »

W0LF писал(а): 21 июл 2023, 00:02 Будет мешать - подвинут.
А лучше вообще убрать его на хрен! И кстати, наконец-то нормальная аватарка! Поздравляю! :friends:
Всего за месяц ЗЕНИТ взял три трофея и одну станцию метро!
Заходите на мой сайт: Схема метро - История метрополитенов в схемах!
Чау-чау
Сообщения: 2589
Зарегистрирован: 26 ноя 2011, 19:20
Станция метро: Шкиперская

Re: Путиловская

Сообщение Чау-чау »

Натяжная и верх среднего зала
l_SeNoU-CrM[1].jpg
djMSSNPiX6k[1].jpg
https://vk.com/podzemnik_spb
Аватара пользователя
Михаил
Сообщения: 4333
Зарегистрирован: 17 май 2004, 10:20
Станция метро: Лиговский Проспект-2
Откуда: Питер

Re: Путиловская

Сообщение Михаил »

Ignat писал(а): 20 июл 2023, 17:23 Ну раз спалили в закупках, видимо, больше не секрет :)
00.jpg
А узел примыкания перехода к Путиловской - есть чертежи? Проход в 4м там так и остался?
Аватара пользователя
koropet
Сообщения: 186
Зарегистрирован: 01 май 2012, 18:40
Станция метро: Электросила
Откуда: Санкт-Петербург

Re: Путиловская

Сообщение koropet »

Он на момент изменения проекта уже был построен, поэтому так и остался проем 4,5м.
Ответить

Вернуться в «Строительство и проектирование»