Новокрестовская
Модератор: Nomernoy
- в40
- Профессионал

- Сообщения: 14816
- Зарегистрирован: 05 фев 2009, 19:46
- Станция метро: Проспект Большевиков
- Откуда: Дачное
Re: Новокрестовская
Brayn, не путайте людей, если толком не разобрались.
У "Приморской" - демонтажная КАМЕРА. В ней будет производиться демонтаж щита на узлы, которые будут транспортировать 2 километра назад и выдавать на поверхность через демонтажную ШАХТУ (демонтажный котлован) у "Новокрестовской".
У "Приморской" - демонтажная КАМЕРА. В ней будет производиться демонтаж щита на узлы, которые будут транспортировать 2 километра назад и выдавать на поверхность через демонтажную ШАХТУ (демонтажный котлован) у "Новокрестовской".
О=О=О=О=О=О=О=О=О=О=О=О=О=О=О=О=О=О=О
-
Manhattan
- Сообщения: 1721
- Зарегистрирован: 20 сен 2012, 21:39
- Станция метро: Приморская
Re: Новокрестовская
У Приморской таки не котлован, а камера.
Я так понял, что вопрос был о том где щит будут вытаскивать после всей проходки.
Я так понял, что вопрос был о том где щит будут вытаскивать после всей проходки.
- в40
- Профессионал

- Сообщения: 14816
- Зарегистрирован: 05 фев 2009, 19:46
- Станция метро: Проспект Большевиков
- Откуда: Дачное
Re: Новокрестовская
Вытаскивать ТПМК будут там, где запланировано - у "Новокрестовской". Для этого демонтажный котлован и построен. Но прежде ТПМК должен ещё построить 2 км тоннеля к "Приморской".
О=О=О=О=О=О=О=О=О=О=О=О=О=О=О=О=О=О=О
- METRO-USSR
- Сообщения: 1132
- Зарегистрирован: 16 дек 2008, 21:21
- Станция метро: Выборгская
Re: Новокрестовская
Темпы работ по возведению станции очень радуют. На сегодняшний день два верхних перекрытия залиты полностью. Третье сверху перекрытие (между платформами и ярусом служебных помещений) тоже почти полностью завершено, кроме центрального пролета, где пока установлены расстрелы напротив каждой колонны. Лоток залит более чем на 2/3 длины станции, грунт в лотке разрабатывается уже в нескольких метрах от южной торцевой стены. Отмечу, что при разработке грунта в лотке, грунт выбирался только в центральном пролете и в соседних с ним по обе стороны. В крайних пролетах между контуром "стены в грунте" и ближайшем к нему ряду колонн (между осями А-Б и Е-Ж) грунт сразу не разрабатывался, оставили на более поздний срок, чтоб как можно быстрее разобраться с подготовкой лотка для приемки щита. Разработка грунта в пространстве между крайними осями для устройства плиты основания началась только на прошлой неделе. У демонтажного котлована производится сборка крытого комплекса с козловым краном для обслуживания ТПМК.
И подборка фотографий за последние недели. Прошу прощения за качество фото и ББ, так как на станции установлено крайне поганое для фотосъемки съемки рабочее освещение.
И подборка фотографий за последние недели. Прошу прощения за качество фото и ББ, так как на станции установлено крайне поганое для фотосъемки съемки рабочее освещение.
- Вложения
Ты кто такой, давай техзадание!
А теперь товарищи, внимание -
Нету ТЗ - давай до свидания!
А теперь товарищи, внимание -
Нету ТЗ - давай до свидания!
- METRO-USSR
- Сообщения: 1132
- Зарегистрирован: 16 дек 2008, 21:21
- Станция метро: Выборгская
Re: Новокрестовская
Прошел месяц с предыдущего рассказа о ходе работ. Итак на сегодняшний день полностью залито третье с верху перекрытие (кроме пространства между осями В-Д, где стоят расстрелы), так же на среднем ярусе полностью залиты чистовой бетон стен. На нижнем ярусе полностью разработан грунт под лоток. Сам лоток почти полностью забетонирован, осталась последняя заходка чистового бетона (примерно 15 метров от южного торца). Таким образом через несколько дней лоток будет полностью залит. На половину длины станции в лотке наварены металлические направляющие , они в целом похожи на рельсы. Скорее всего они будут использоваться для передвижения технологических тележек.
Параллельно с этим продолжается разработка грунта под устройство жесткого основания (в осях А-Б и Е-Ж), общий прогресс по этим работам примерно 50%. Таким образом через считанные недели на внутри станции полностью завершится важный этап работ - разработка грунта
Так же на нижнем ярусе в осях А-Б и Е-Ж где уже грунт разработан началась заливка жесткого основания, а на некотором удалении от этих работ заливают чистовой бетон стен. Совсем скоро уже начнут заливать платформы, под которые сварщики готовят "столики" на колоннах
На верхнем ярусе представили УМа сегодня начали монтировать конвейер. В южном НВУ работы близятся к завершению. На поверхности уже залито основание венткиоска. В северном НВУ идут бетонные работы, в северном торце куда должен выйти щит пока тоже никаких изменений. Над демонтажным котлованом сооружается каркас крытого цеха. Котлован пока еще засыпан грунтом (он там с весны). С января на верхнем ярусе должны стартовать работы по возведению внутренних конструкций (перегородок помещений и пр.) и первые отделочные работы.
На фоне такого прогресса темпы работ на "Беговой" честно говоря пугают
Но, поживем увидим.
Параллельно с этим продолжается разработка грунта под устройство жесткого основания (в осях А-Б и Е-Ж), общий прогресс по этим работам примерно 50%. Таким образом через считанные недели на внутри станции полностью завершится важный этап работ - разработка грунта
Так же на нижнем ярусе в осях А-Б и Е-Ж где уже грунт разработан началась заливка жесткого основания, а на некотором удалении от этих работ заливают чистовой бетон стен. Совсем скоро уже начнут заливать платформы, под которые сварщики готовят "столики" на колоннах
На верхнем ярусе представили УМа сегодня начали монтировать конвейер. В южном НВУ работы близятся к завершению. На поверхности уже залито основание венткиоска. В северном НВУ идут бетонные работы, в северном торце куда должен выйти щит пока тоже никаких изменений. Над демонтажным котлованом сооружается каркас крытого цеха. Котлован пока еще засыпан грунтом (он там с весны). С января на верхнем ярусе должны стартовать работы по возведению внутренних конструкций (перегородок помещений и пр.) и первые отделочные работы.
На фоне такого прогресса темпы работ на "Беговой" честно говоря пугают
Но, поживем увидим.- Вложения
Ты кто такой, давай техзадание!
А теперь товарищи, внимание -
Нету ТЗ - давай до свидания!
А теперь товарищи, внимание -
Нету ТЗ - давай до свидания!
- Andrey_K
- Сообщения: 706
- Зарегистрирован: 06 июн 2013, 17:20
- Станция метро: Большеохтинская
Re: Новокрестовская
METRO-USSR писал(а):На фоне такого прогресса темпы работ на "Беговой" честно говоря пугаютНо, поживем увидим.
Думается, что после того как щит минует НВК, на Беговой работы значительно ускорятся.
НеВу на КВЛ!
- mx
- Профессионал

- Сообщения: 4137
- Зарегистрирован: 14 сен 2005, 21:32
- Станция метро: -------
- Откуда: 59`50N 30`25E
Re: Новокрестовская
METRO-USSR писал(а):На верхнем ярусе представили УМа сегодня начали монтировать конвейер.
Как и предполагалось ещё год назад. Без переключения откатки на "Новокрестовскую" никак не успеть.
METRO-USSR писал(а):На фоне такого прогресса темпы работ на "Беговой" честно говоря пугаютНо, поживем увидим.
После перемещения обслуживания щита на "Новокрестовскую" сразу пойдёт веселей, движения в тоннеле не будет. И станция почти в два раза уже.
Всё потому, что кто-то слишком много ест!
-
Manhattan
- Сообщения: 1721
- Зарегистрирован: 20 сен 2012, 21:39
- Станция метро: Приморская
Re: Новокрестовская
Теперь интересно, сбудется ли мое предсказание по поводу того что метростроевцы задействуют свой собственный мост для вывоза породы?
- karhu
- Сообщения: 3938
- Зарегистрирован: 31 дек 2008, 19:14
- Станция метро: Василеостровская
- Откуда: Санкт-Петербург
Re: Новокрестовская
На Яхтенном мосту пока даже плита не залита.
Но уже смонтированы и соединены пролёты!
Но уже смонтированы и соединены пролёты!
"Ключик на 60 дайте, пожалуйста".
-
Manhattan
- Сообщения: 1721
- Зарегистрирован: 20 сен 2012, 21:39
- Станция метро: Приморская
Re: Новокрестовская
Ну так и грунт вывозить не сейчас а в лучшем случае в феврале.
- karhu
- Сообщения: 3938
- Зарегистрирован: 31 дек 2008, 19:14
- Станция метро: Василеостровская
- Откуда: Санкт-Петербург
Re: Новокрестовская
Это будет самый лучший вариант!
Уверен, вто Яхтенный мост 100% будет задействован, т.к. в том числе пренадлежит Метрострою.
Очень рад тому, что конвейер перенесут на НВК, а так же тому, что исключён вариант дополнительного вертикального конвейера.
Уверен, вто Яхтенный мост 100% будет задействован, т.к. в том числе пренадлежит Метрострою.
Очень рад тому, что конвейер перенесут на НВК, а так же тому, что исключён вариант дополнительного вертикального конвейера.
"Ключик на 60 дайте, пожалуйста".
- Brayn
- Сообщения: 945
- Зарегистрирован: 17 янв 2007, 10:40
- Станция метро: Девяткино
Re: Новокрестовская
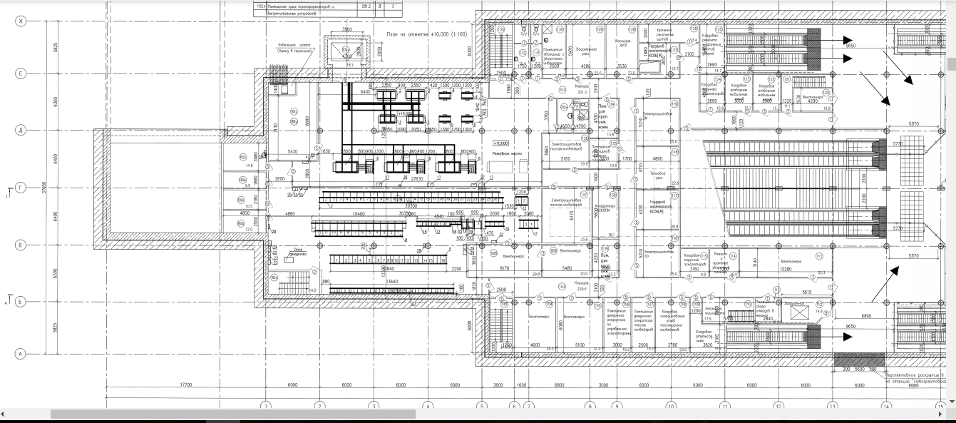
Есть какая нибуть схема которая даёт понять где какая ось находится? А то буквенные значения несчем сопоставить .
Фанат Naruto!
- METRO-USSR
- Сообщения: 1132
- Зарегистрирован: 16 дек 2008, 21:21
- Станция метро: Выборгская
Re: Новокрестовская
Вот вам схема. Оси А-Ж - продольные, ось А ближе всего к Финскому заливу, ось Ж - к ЗСД и стадиону. Ось Г - середина, совпадает с осью перегонного тоннеля в пределах станции. Цифрами обозначены поперечные оси (проходят по колоннам).
Идея с конвейером и использованием Яхтенного моста для вывоза грунта интересная. Площадку станции это дополнительно не загрузит, т.к. к тому моменту закончится разработка грунта на самой станции. Интересно правда как конвейер будет пропущен через перекрытия станции, перепад высот то получится не маленький. Но это мы скоро увидим.
Идея с конвейером и использованием Яхтенного моста для вывоза грунта интересная. Площадку станции это дополнительно не загрузит, т.к. к тому моменту закончится разработка грунта на самой станции. Интересно правда как конвейер будет пропущен через перекрытия станции, перепад высот то получится не маленький. Но это мы скоро увидим.
Ты кто такой, давай техзадание!
А теперь товарищи, внимание -
Нету ТЗ - давай до свидания!
А теперь товарищи, внимание -
Нету ТЗ - давай до свидания!
- Andrey_K
- Сообщения: 706
- Зарегистрирован: 06 июн 2013, 17:20
- Станция метро: Большеохтинская
Re: Новокрестовская
Я так понимаю, что после того как щит целиком уйдет за демонтажный котлован, то конвейер на станции демонтируют и начнут производить выдачу породы через котлован?
НеВу на КВЛ!
- в40
- Профессионал

- Сообщения: 14816
- Зарегистрирован: 05 фев 2009, 19:46
- Станция метро: Проспект Большевиков
- Откуда: Дачное
Re: Новокрестовская
При прохождении ТПМК сквозь станцию конвейер уже не нужен - выдавать нечего. Поэтому его демонтаж начнётся сразу, как только будет вскрыта северная торцевая стена.
О=О=О=О=О=О=О=О=О=О=О=О=О=О=О=О=О=О=О