Маяковская

Здесь обсуждаем все, что связано со станциями нашего метрополитена
Ответить
Аватара пользователя
КВЛолюбитель
Сообщения: 239
Зарегистрирован: 03 дек 2012, 20:34
Станция метро: Академическая
Откуда: Электродепо Северное

Re: Маяковская

Сообщение КВЛолюбитель »

Кстати заметил интересный факт,что Маяковская единственная станция первой очереди НВЛ, у которой отсутствует вент.шахта наклонного хода в довесок к станционной в отличии от оставшихся трёх.И ещё интересует, для каких целей в камере съезда на обратном своде вент.установки? (на многих фотографиях в интернете можно найти) Для вентилирования ССВ?
Круче гор могут быть только горы, на которых ты ещё не бывал(с)
Аватара пользователя
в40
Профессионал
Профессионал
Сообщения: 14816
Зарегистрирован: 05 фев 2009, 19:46
Станция метро: Проспект Большевиков
Откуда: Дачное

Re: Маяковская

Сообщение в40 »

Похоже, что для вентиляции ССВ 1-3. Где-то в 2003-2004 годах мне пару раз довелось пройтись по ней. И этих вентиляторов тогда ещё не было. А в середней части ССВ из-за плохого проветривания воздух был довольно затхлый.
О=О=О=О=О=О=О=О=О=О=О=О=О=О=О=О=О=О=О
Аватара пользователя
MetroGnom
Сообщения: 6165
Зарегистрирован: 18 ноя 2010, 16:47
Станция метро: -------

Re: Маяковская

Сообщение MetroGnom »

На станции явно пониженное напряжение - мерцание всех ламп прекрасно заметно глазу. Такого ещё не видел.
Аватара пользователя
MetroGnom
Сообщения: 6165
Зарегистрирован: 18 ноя 2010, 16:47
Станция метро: -------

Re: Маяковская

Сообщение MetroGnom »

Хорошо бы было заменить лампы, находящиеся непосредственно у малых эскалаторов (дугой по своду). Голые ртутные трубки, да ещё и на расстоянии вытянутой руки. Небезопасно. Да и наказуемо при проверках. Хороши бы были лампы как в наклонах после ремонта. :wink:
Svjazist
Сообщения: 843
Зарегистрирован: 08 май 2011, 17:31
Станция метро: Зоопарк
Откуда: Санкт-Петербург

Re: Маяковская

Сообщение Svjazist »

https://spbdnevnik.ru/news/2018-08-29/mayakovskuyu-zakroyut-na-remont-v-2020-godu?utm_source=yxnews&utm_medium=desktop

Следующая станция, которую в Петербурге закроют на ремонт, – это «Маяковская». По планам метрополитена это произойдет в первом квартале 2020 года.

«Сейчас у нас заключен договор на проектирование станции метро «Маяковская». И готовится конкурс на проектирование наклонного хода станции метро «Московская-2», – рассказал «ПД» начальник производственного отдела службы инфраструктурных программ метрополитена Алексей Мичурин.

Сейчас проект по ремонту «Маяковской» уже готов и проходит экспертизу. Ремонт по аналогии с «Академической» продолжится 11 месяцев.

Что касается «Московской-2», то ее ремонт будет идти практически параллельно. Обе станции метрополитен планирует отремонтировать в 2020 году.

Также в планах – ремонт станции «Технологический институт». Как пояснили в метрополитене, заказчиком на ремонт этой станции выступает КРТИ.
«Они будут заниматься «Техноложкой» до конца 2020 года», – пояснил Мичурин.
Аватара пользователя
в40
Профессионал
Профессионал
Сообщения: 14816
Зарегистрирован: 05 фев 2009, 19:46
Станция метро: Проспект Большевиков
Откуда: Дачное

Re: Маяковская

Сообщение в40 »

Вообще-то, служба носит название инвестиционных программ, а не инфраструктурных.
О=О=О=О=О=О=О=О=О=О=О=О=О=О=О=О=О=О=О
Аватара пользователя
karhu
Сообщения: 3938
Зарегистрирован: 31 дек 2008, 19:14
Станция метро: Василеостровская
Откуда: Санкт-Петербург

Re: Маяковская

Сообщение karhu »

А в 19 какой выход закроют?
"Ключик на 60 дайте, пожалуйста".
Аватара пользователя
4pet
Сообщения: 2675
Зарегистрирован: 13 окт 2005, 13:59
Станция метро: Ладожская

Re: Маяковская

Сообщение 4pet »

Технологический и-т
Аватара пользователя
MetroGnom
Сообщения: 6165
Зарегистрирован: 18 ноя 2010, 16:47
Станция метро: -------

Re: Маяковская

Сообщение MetroGnom »

И тут тоже, естественно, с ремонтом наклонного хода тишина?

Из интересного: сарай в центре станции (стоящий аж с 2016 года) снова сменил "срок службы": теперь до конца 2020 года. Каждый год переклеивают цифры. Не удивлюсь, если скоро и 2021 появится. Позор.
С начавшейся заменой дверей это явно никак не связано.
Аватара пользователя
Kaamoos
Сообщения: 9826
Зарегистрирован: 04 июн 2012, 19:33
Станция метро: Крестовский Остров
Откуда: Ленинград

Re: Маяковская

Сообщение Kaamoos »

Никогда не ходил по Марата у угла Невского. Там какой-то рассадник страховщиков...Если пройтись вдоль Марата по стороне, где метро, там до офисного здания стоят зазывалы на страховки, визы, какие-то там оформления и т.п. Что за дичь???
Вложения
DSC02097.JPG
It's good to see you again!
Tubeman
Сообщения: 801
Зарегистрирован: 29 ноя 2006, 20:27
Откуда: Питер.Московская

Re: Маяковская

Сообщение Tubeman »

На углу Марата и Стремянной финский визовый центр, на это и расчет
Аватара пользователя
MetroGnom
Сообщения: 6165
Зарегистрирован: 18 ноя 2010, 16:47
Станция метро: -------

Re: Маяковская

Сообщение MetroGnom »

О, этому уже больше десяти лет. Традиция, можно сказать.

Вопрос по самой станции: при открытии же на существующих светильниках были матовые стёкла-плафоны? По всей длине?
Gleb
Сообщения: 898
Зарегистрирован: 22 май 2006, 23:11
Станция метро: Новочеркасская

Re: Маяковская

Сообщение Gleb »

25 марта 2020 г. ГУП "ПЕТЕРБУРГСКИЙ МЕТРОПОЛИТЕН " объявлен конкурс на выполнение работ по капитальному ремонту вестибюля и наклонного хода станции "Маяковская".
Срок окончания подачи заявок - 10 апреля 2020 г.
Начальная цена - 375 699 160,67 ₽.
Срок окончания работ в соответствии с проектом договора - 11 апреля 2021 г.
Выдержки из технического задания:
1.8. Сроки начала и окончания работ:
Начало работ: С даты заключения договора.
Окончание работ – 11.04.2021.
Раздел 2. «Требования к выполнению работы»
2.1. Описание предмета закупки, а также требования о необходимости выполнения работ в соответствии с утвержденной проектно-сметной документацией (далее – ПСД):
В ходе выполнения работ по Капитальному ремонту вестибюля и наклонного хода станции «Маяковская» будут выполняться следующие работы:
- устройство гидроизоляция и ремонт пола первого этажа вестибюля, входных/выходных тамбуров и лоджий фасада со стороны ул. Марата и Невский пр. и служебных помещений вестибюля, в том числе в связи с заменой инженерных сетей;
- ремонт гидроизоляции кровли козырька со стороны дворового фасада;
- устройство конструкций входной группы (витражи входных дверей) для перераспределения направления пассажиропотока на станцию и обеспечения доступности в вестибюли станции маломобильных групп населения для обеспечения прохода МГН;
- нагнетание инъекционных гидроизоляционных составов за пределы тюбинговой обделки наклонного хода;
- перечеканка стыков тюбинговой крепи свинцом;
- замена на аналогичные чугунных пробок и болтовых соединений тюбинговой крепи наклонного хода;
- восстановление ж.б. конструкций оснащения наклонного хода: ступени, водосборные лотки из новых аналогичных материалов;
- гидроизоляция полов и обделки натяжной камеры;
- замена водоотводящих зонтов наклонного хода и натяжной камеры.
- гидроизоляция бетонной крепи в уровне оголовка наклонного хода;
- ремонт и гидроизоляция опорных частей фундаментов эскалатора в наклонном ходе;
- ремонт с заменой отдельных элементов на аналогичные улучшающие свойства опорных узлов ферм эскалаторов;
- капитальный ремонт системы местной вентиляции. Оснащение вестибюля станции системами приточно-вытяжной вентиляцией;
- капитальный ремонт освещения;
- капитальный ремонт внутренней системы отопления, водоснабжения и водоотведения.

Работы необходимо выполнить в соответствии с утвержденной рабочей и сметной документацией, разработанной ООО «СК «ПСР» (шифр 337182 -19.06.2018) на капитальный ремонт вестибюля и наклонного хода станции «Маяковская».
Аватара пользователя
MetroGnom
Сообщения: 6165
Зарегистрирован: 18 ноя 2010, 16:47
Станция метро: -------

Re: Маяковская

Сообщение MetroGnom »

Прекрасно, с нынешним чудо-губернатором сорваны вообще все планы и сроки. Только жителям гадить может, @.
Gleb
Сообщения: 898
Зарегистрирован: 22 май 2006, 23:11
Станция метро: Новочеркасская

Re: Маяковская

Сообщение Gleb »

Gleb писал(а):25 марта 2020 г. ГУП "ПЕТЕРБУРГСКИЙ МЕТРОПОЛИТЕН " объявлен конкурс на выполнение работ по капитальному ремонту вестибюля и наклонного хода станции "Маяковская".

Некоторые выдержки из рабочей документации.
Генеральный план:
Ген план маяковская.png

Стройгенплан:
Стройгенплан Маяковская.png

Вестибюль. Архитектурные решения:
Архитекрурные решения.png

Вестибюль. Разграничительные барьеры:
Ветибюль барьеры.png

Вестибюль. Входные группы. Вход с Невского пр.:
Ветибюль вход с Невского.png

Вестибюль. Входные группы. Выход на ул. Марата:
Ветибюль выход с Марата.png

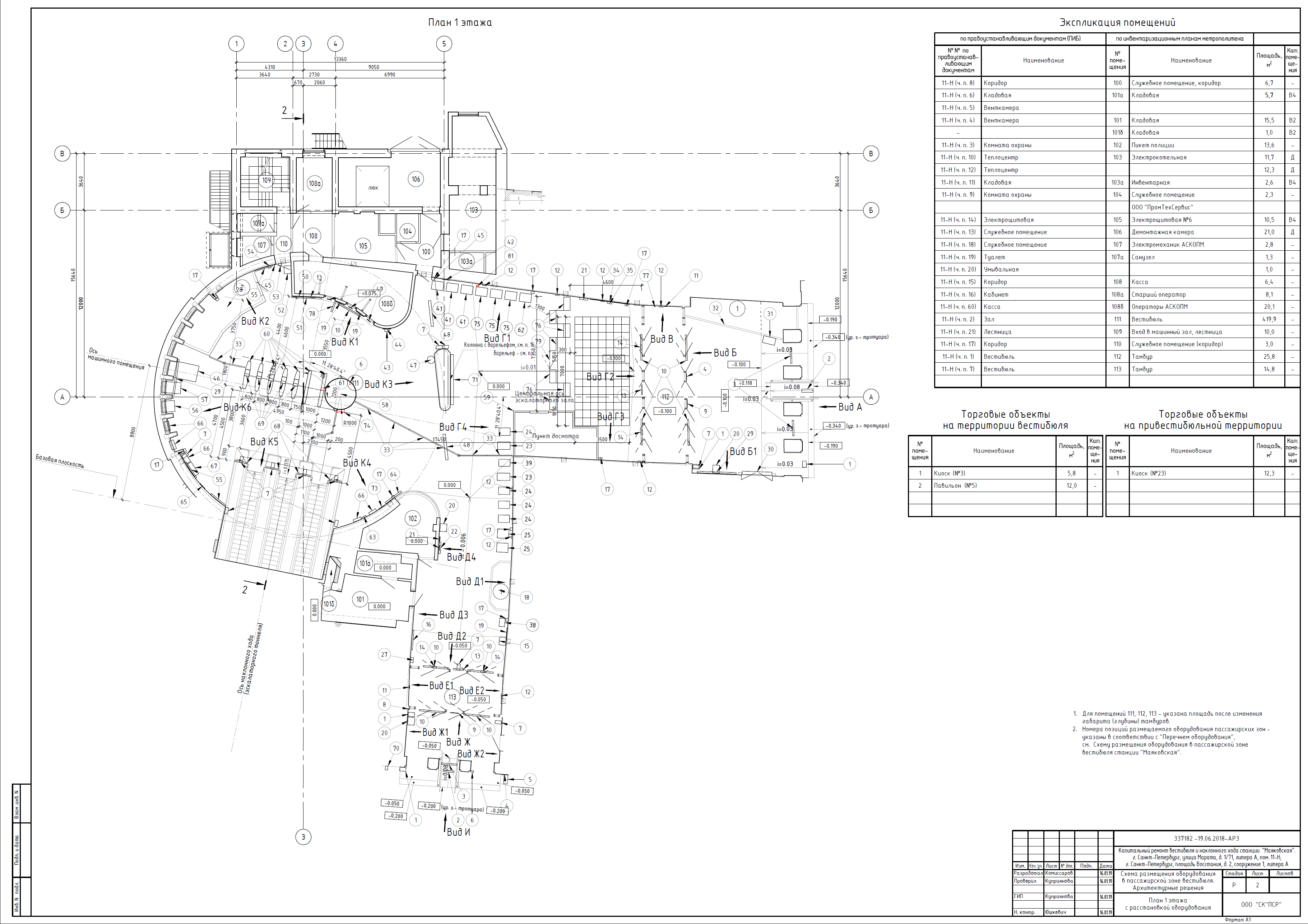
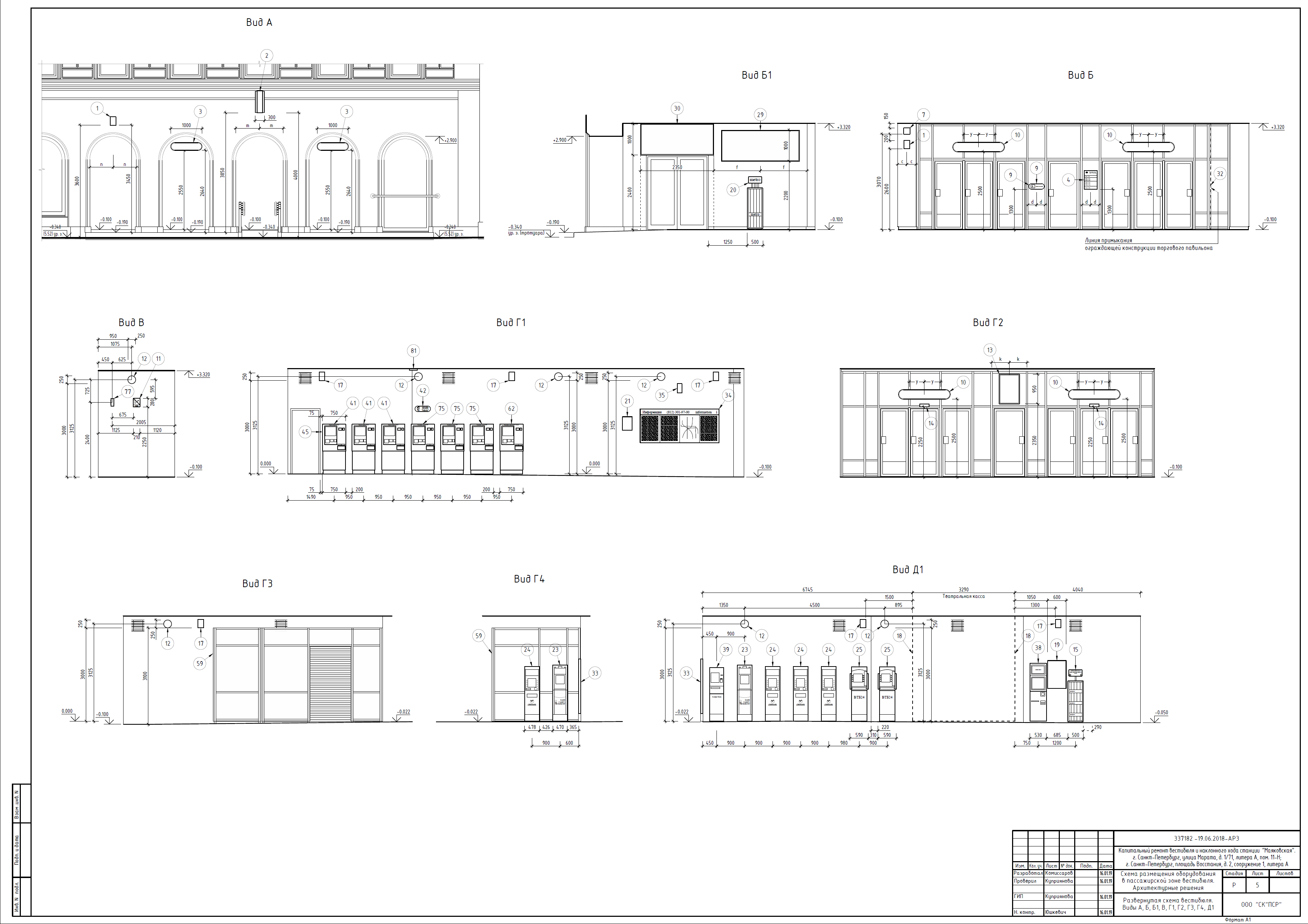
Вестибюль. Схемы размещения оборудования:
Ветибюль оборудование.png

Ветибюль оборудование1.png

Ветибюль оборудование2.png

Наклонный ход. Разрез:
НХ разрез в грунте.png

Наклонный ход. Краткая характеристика:
НХ характеристика.png

Наклонный ход. Схема производства работ:
НХ схема работ.png

Наклонный ход. Установка водоотводных зонтов:
НХ установка зонтов.png

НХ установка зонтов1.png

НХ установка зонтов2.png

Освещение. Архитектурное электроосвещение вестибюля. План размещения:
Схема Освещение Маяковская2.png

Освещение вестибюля. Вид:
Освещение Маяковская.png

Освещение вестибюля. Освещенность:
Освещение Маяковская1.png

Освещение НХ. Вид:
Освещение НХ.png

Освещение. Типы применяемых светильников:
Освещение Маяковская2 светильники.png
Ответить

Вернуться в «Станции»